Description
This contemporary two-storey house is 36 feet wide by 40 feet deep and provides 2,163 square feet of living space in addition to a 306 square foot one-car garage.
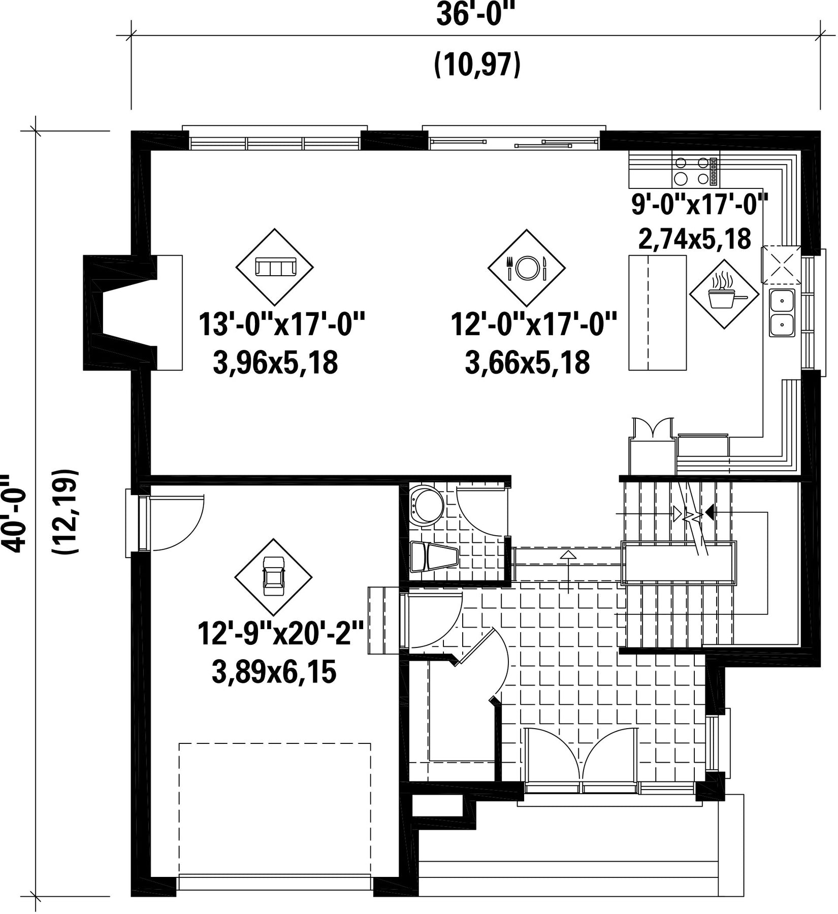
The 994 square foot ground floor features 9-foot high ceilings. The double entrance door opens onto a large hall, which is ideal when there are young children. The space includes a powder room, an open living room with a fireplace and a dining room, as well as a kitchen with an island, large cupboards and a breakfast nook.
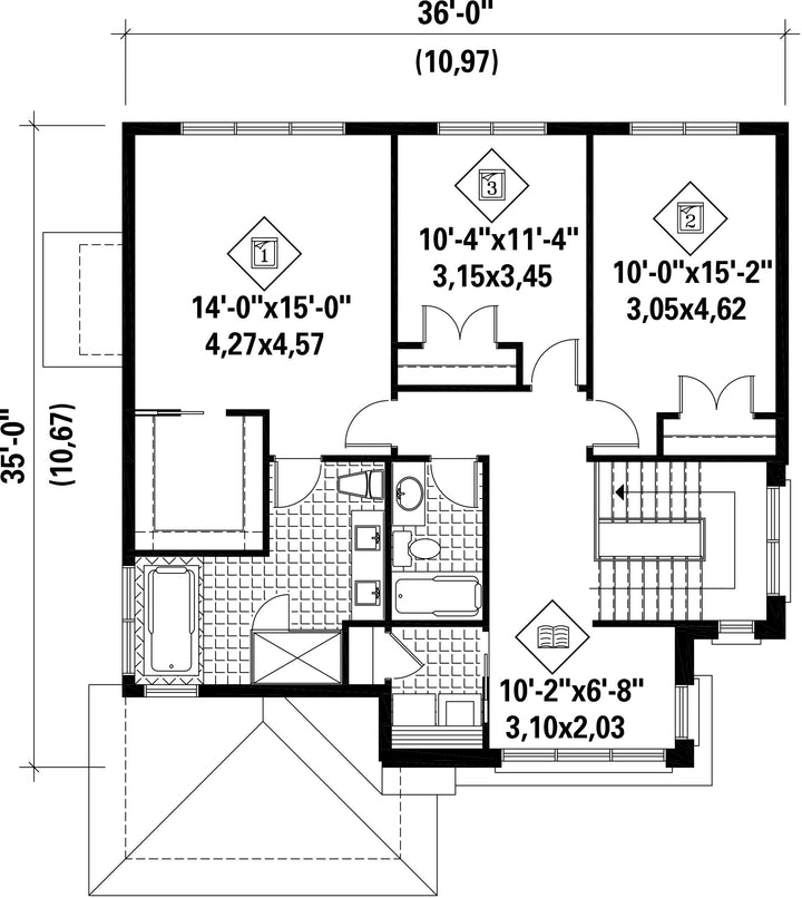
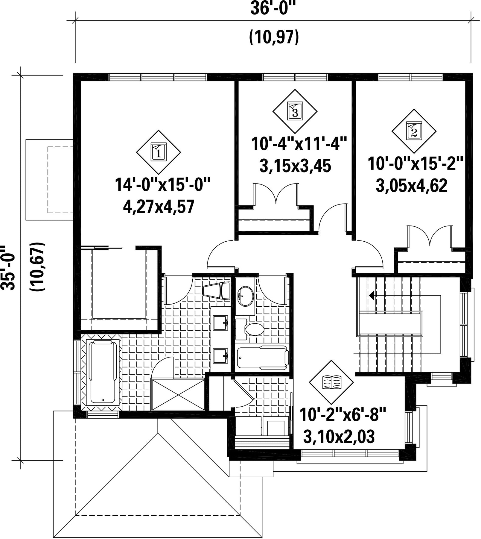
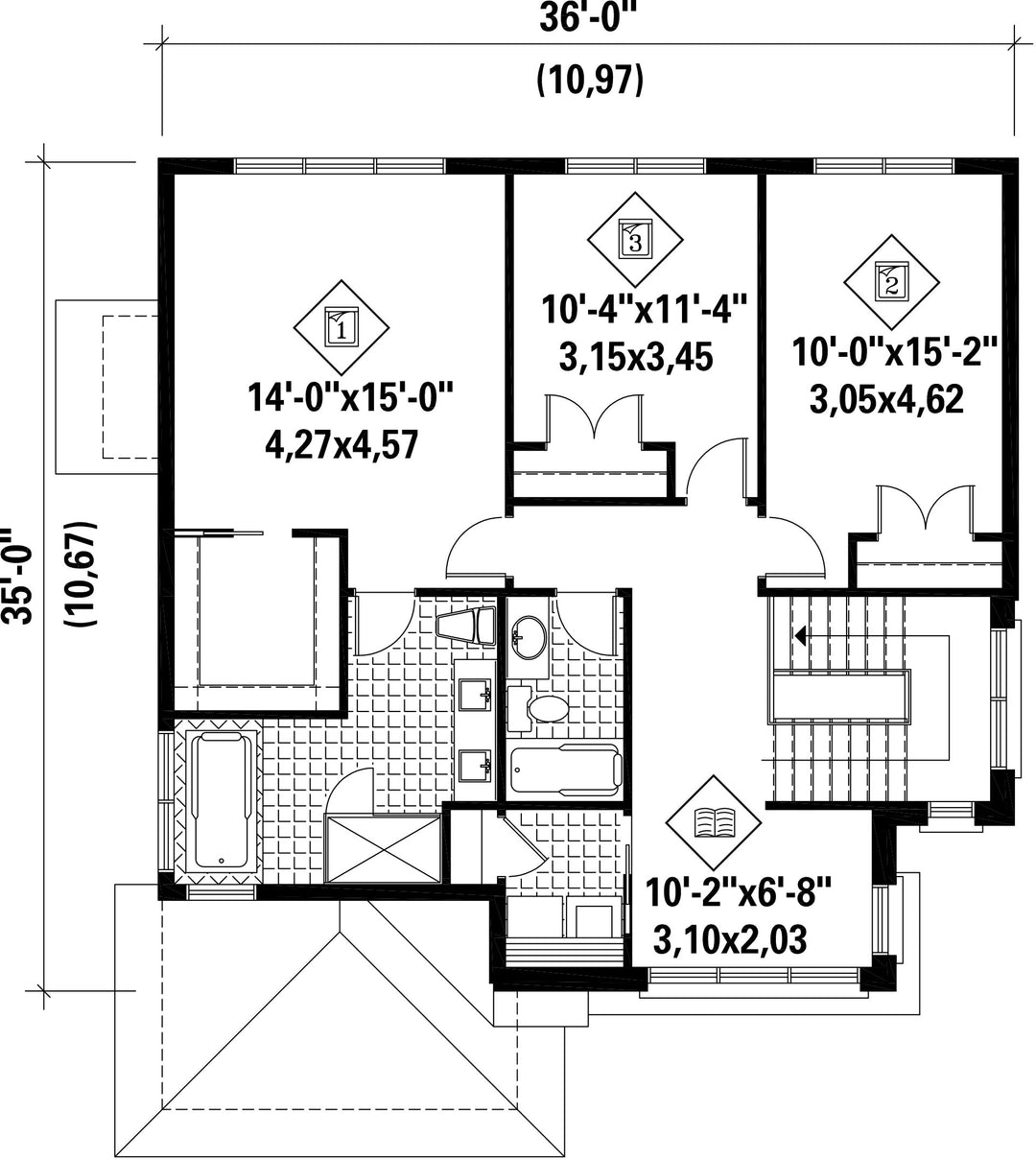
The upper floor has 1,169 square feet of living space and features a family bathroom, a laundry room, a reading area and three bedrooms, including a master bedroom with a large walk-in closet and a private bathroom.
The 994 square foot ground floor features 9-foot high ceilings. The double entrance door opens onto a large hall, which is ideal when there are young children. The space includes a powder room, an open living room with a fireplace and a dining room, as well as a kitchen with an island, large cupboards and a breakfast nook.
The upper floor has 1,169 square feet of living space and features a family bathroom, a laundry room, a reading area and three bedrooms, including a master bedroom with a large walk-in closet and a private bathroom.
Additional info
Measurements: Imperial| House style | Urban |
Construction price
Approximate amount equivalent to what it would cost to have a general contractor (Montreal's South Shore region) build a similar home, excluding the lot and the infrastructure.
|
528453 $ |
|---|---|---|---|
| Front | 36 ft | Total living surface | 2163 ft² |
| Depth | 40 ft | Bathrooms | 2 |
| Height | 28 ft 10 in | Bedrooms | 3 |
| Master bedroom | Bathtub + Shower + Double sink + Wardrobe + Toilet | ||
| First floor area | 994 ft² | Exterior walls | Aluminum + Brick + Stone |
| Second floor area | 1169 ft² | Kitchen | U-shaped + Laboratory + Island |
| Garage area | 306 ft² | Garages | 1 |
| Garage wall | 8 ft | First floor wall | 9 ft |
| Second floor wall | 8 ft | Front/back roof slope | 4/12 |
| Left/right roof slope | 4/12 |
| House style | Urban |
|---|---|
|
Construction price
Approximate amount equivalent to what it would cost to have a general contractor (Montreal's South Shore region) build a similar home, excluding the lot and the infrastructure.
|
528453 $ |
| Front | 36 ft |
| Total living surface | 2163 ft² |
| Depth | 40 ft |
| Bathrooms | 2 |
| Height | 28 ft 10 in |
| Bedrooms | 3 |
| Master bedroom | Bathtub + Shower + Double sink + Wardrobe + Toilet |
| First floor area | 994 ft² |
| Exterior walls | Aluminum + Brick + Stone |
| Second floor area | 1169 ft² |
| Kitchen | U-shaped + Laboratory + Island |
| Garage area | 306 ft² |
| Garages | 1 |
| Garage wall | 8 ft |
| First floor wall | 9 ft |
| Second floor wall | 8 ft |
| Front/back roof slope | 4/12 |
| Left/right roof slope | 4/12 |