Description
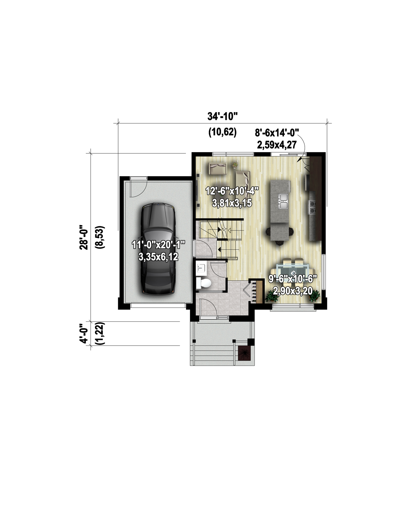
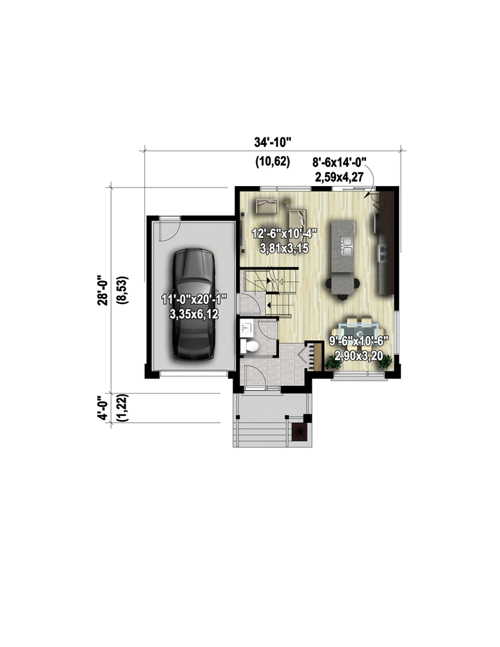
This lovely two-storey house is 34 feet 10 inches wide by 28 feet deep and provides 1,190 square feet of living space, including a 264 square-foot one-car garage. The materials used for the home’s exterior – aluminum, brick, stone and wood – truly enhance its appearance.
The ground floor has a 595 square-foot living area and features an entrance hall with a closet, a powder room, a dining room overlooking the front, a living room overlooking the back, and a kitchen with an island that includes a sink and can sit three people.
The upper floor has 595 square feet of living space and features a complete bathroom with a separate shower, a freestanding bathtub and a vanity with storage, as well as three bedrooms, including a master bedroom with French doors.
The ground floor has a 595 square-foot living area and features an entrance hall with a closet, a powder room, a dining room overlooking the front, a living room overlooking the back, and a kitchen with an island that includes a sink and can sit three people.
The upper floor has 595 square feet of living space and features a complete bathroom with a separate shower, a freestanding bathtub and a vanity with storage, as well as three bedrooms, including a master bedroom with French doors.
Additional info
Measurements: Imperial| House style | Urban |
Construction price
Approximate amount equivalent to what it would cost to have a general contractor (Montreal's South Shore region) build a similar home, excluding the lot and the infrastructure.
|
275782 $ |
|---|---|---|---|
| Front | 34 ft 10 in | Total living surface | 1190 ft² |
| Depth | 28 ft | Bathrooms | 1 |
| Height | 28 ft 6 in | Bedrooms | 3 |
| Master bedroom | Double doors | ||
| First floor area | 595 ft² | Exterior walls | Aluminum + Wood + Brick + Stone |
| Second floor area | 595 ft² | Kitchen | Laboratory + Island |
| Garage area | 264 ft² | Garages | 1 |
| Garage wall | 8 ft | First floor wall | 8 ft |
| Second floor wall | 8 ft | Front/back roof slope | 6/12 |
| Left/right roof slope | 6/12 |
| House style | Urban |
|---|---|
|
Construction price
Approximate amount equivalent to what it would cost to have a general contractor (Montreal's South Shore region) build a similar home, excluding the lot and the infrastructure.
|
275782 $ |
| Front | 34 ft 10 in |
| Total living surface | 1190 ft² |
| Depth | 28 ft |
| Bathrooms | 1 |
| Height | 28 ft 6 in |
| Bedrooms | 3 |
| Master bedroom | Double doors |
| First floor area | 595 ft² |
| Exterior walls | Aluminum + Wood + Brick + Stone |
| Second floor area | 595 ft² |
| Kitchen | Laboratory + Island |
| Garage area | 264 ft² |
| Garages | 1 |
| Garage wall | 8 ft |
| First floor wall | 8 ft |
| Second floor wall | 8 ft |
| Front/back roof slope | 6/12 |
| Left/right roof slope | 6/12 |