Description
It will be hard to resist this wonderful two-storey house with its large panoramic windows. Its brick and stone facade is particularly well suited to its contemporary architecture. The home is 38 feet 10 inches wide by 32 feet deep and provides 1,618 square feet of living space. An additional room can eventually be built over the 264 square-foot one-car garage.
Providing 809 square feet of living space, the ground floor includes a closed entrance hall with a large closet, a staircase with huge windows, a powder room, and an open area with 9-foot high ceilings that includes a dining room, a living room and a spacious kitchen with an island and a pantry.
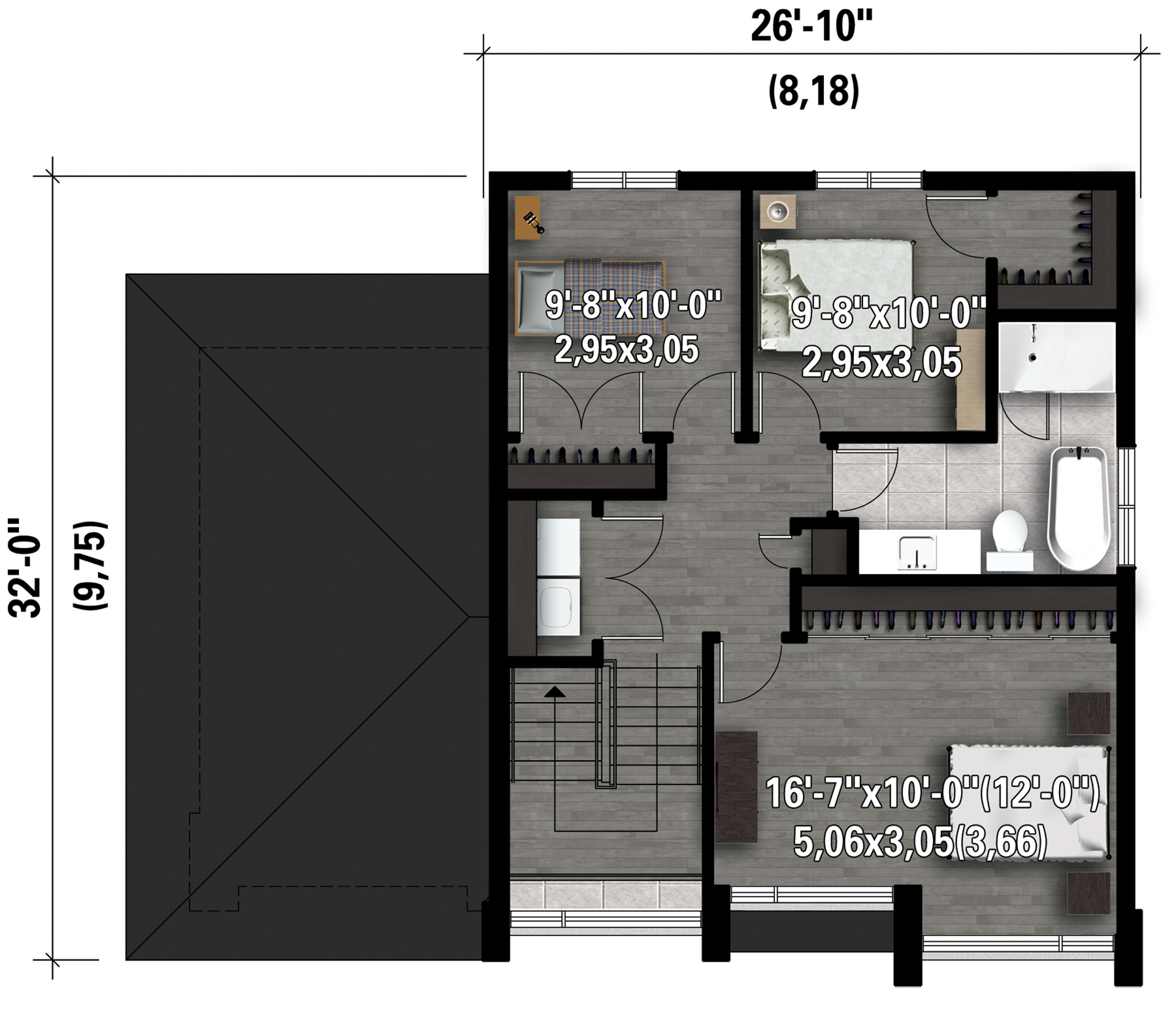
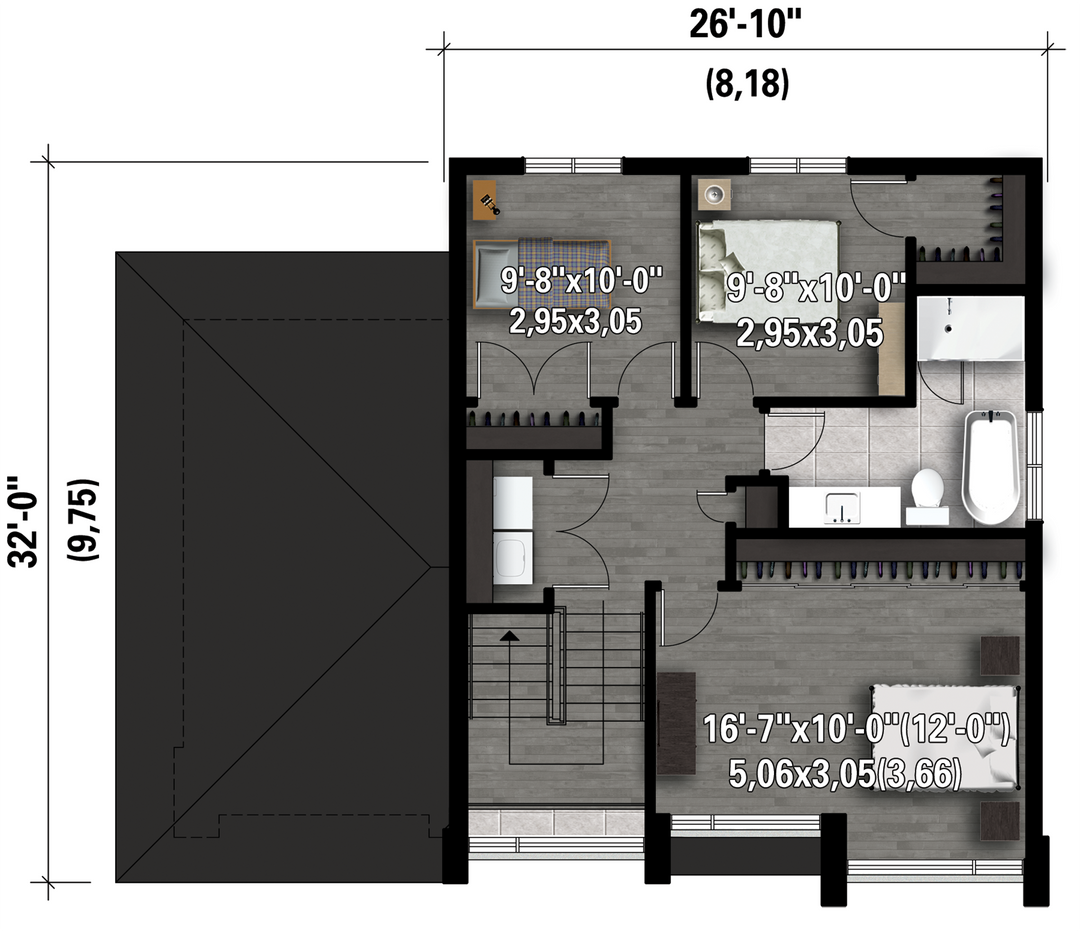
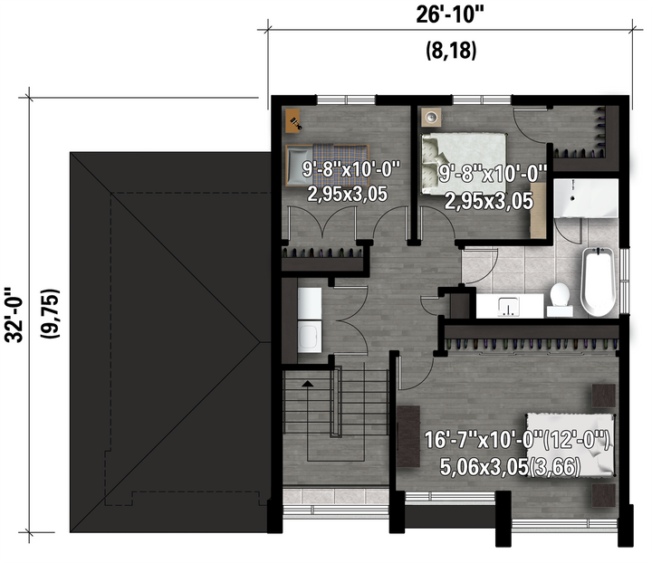
With an 809 square-foot living area, the upper floor features a bathroom with a freestanding bathtub and a large ceramic shower, a laundry room as well as three bedrooms.
Providing 809 square feet of living space, the ground floor includes a closed entrance hall with a large closet, a staircase with huge windows, a powder room, and an open area with 9-foot high ceilings that includes a dining room, a living room and a spacious kitchen with an island and a pantry.
With an 809 square-foot living area, the upper floor features a bathroom with a freestanding bathtub and a large ceramic shower, a laundry room as well as three bedrooms.
Additional info
Measurements: Imperial| House style | Urban |
Construction price
Approximate amount equivalent to what it would cost to have a general contractor (Montreal's South Shore region) build a similar home, excluding the lot and the infrastructure.
|
374141 $ |
|---|---|---|---|
| Front | 38 ft 10 in | Total living surface | 1618 ft² |
| Depth | 32 ft | Bathrooms | 1 |
| Height | 31 ft 5 in | Bedrooms | 3 |
| Master bedroom | N / A | ||
| First floor area | 809 ft² | Exterior walls | Aluminum + Brick + Stone |
| Second floor area | 809 ft² | Kitchen | L-shaped + Island |
| Garage area | 264 ft² | Garages | 1 |
| Garage wall | 8 ft | First floor wall | 9 ft |
| Second floor wall | 8 ft | Front/back roof slope | 6/12 |
| Left/right roof slope | 6/12 |
| House style | Urban |
|---|---|
|
Construction price
Approximate amount equivalent to what it would cost to have a general contractor (Montreal's South Shore region) build a similar home, excluding the lot and the infrastructure.
|
374141 $ |
| Front | 38 ft 10 in |
| Total living surface | 1618 ft² |
| Depth | 32 ft |
| Bathrooms | 1 |
| Height | 31 ft 5 in |
| Bedrooms | 3 |
| Master bedroom | N / A |
| First floor area | 809 ft² |
| Exterior walls | Aluminum + Brick + Stone |
| Second floor area | 809 ft² |
| Kitchen | L-shaped + Island |
| Garage area | 264 ft² |
| Garages | 1 |
| Garage wall | 8 ft |
| First floor wall | 9 ft |
| Second floor wall | 8 ft |
| Front/back roof slope | 6/12 |
| Left/right roof slope | 6/12 |