Description
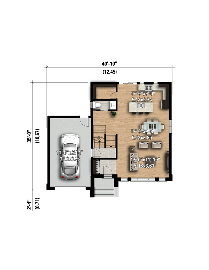
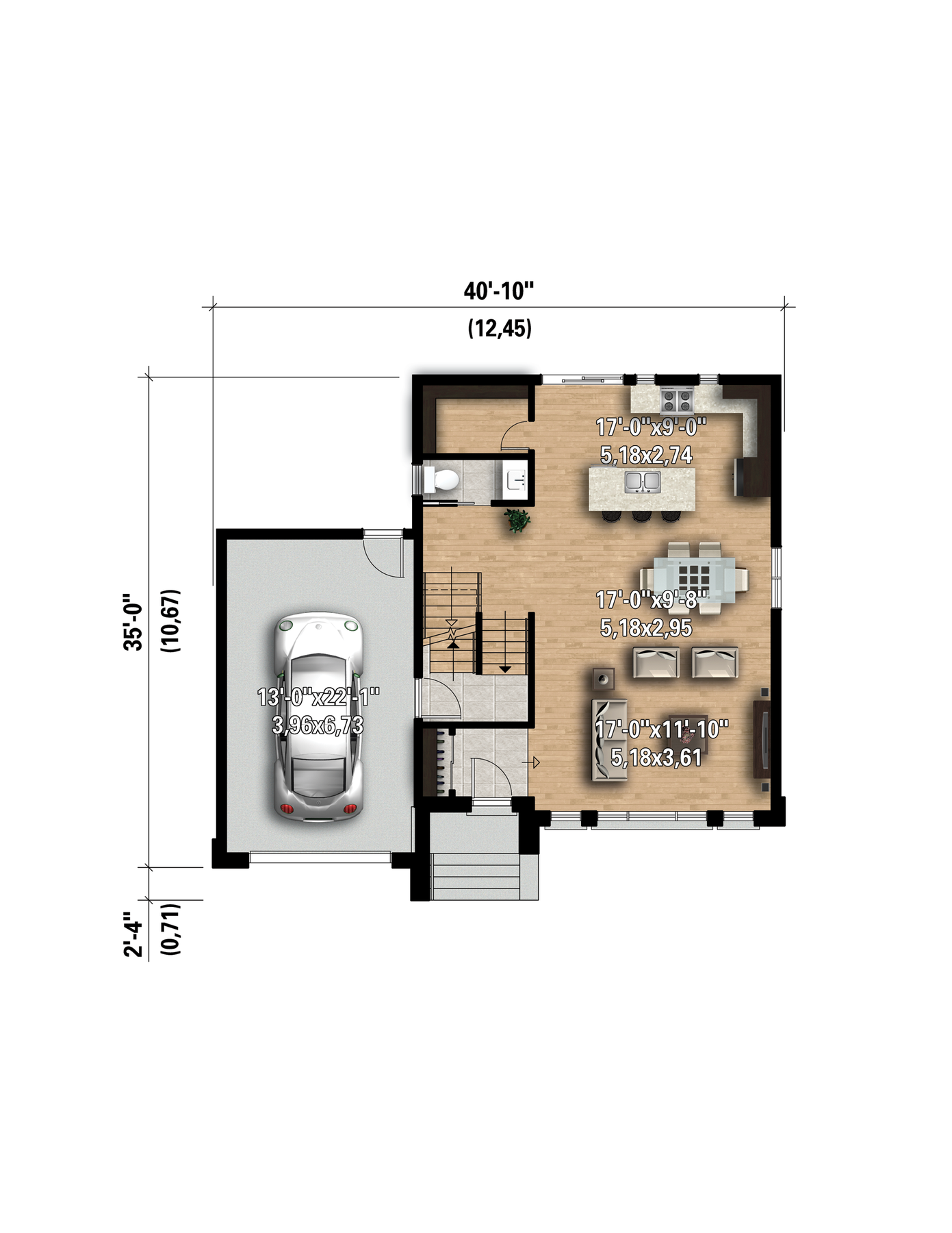
This compact two-storey house is very functional for a family as an additional room can eventually be built above the garage. The home provides 1,648 square feet of living space, it is 40 feet 10 inches wide by 35 feet deep, and includes a 341 square-foot one-car garage.
With 9-foot high ceilings, the open ground floor has an 826 square-foot living area and includes a powder room, a living room, a dining room, as well as a kitchen with an island and a large pantry.
With 822 square feet of living space, the upper floor includes a bathroom with a large ceramic shower, a closet for the washer and dryer, and three bedrooms.
With 9-foot high ceilings, the open ground floor has an 826 square-foot living area and includes a powder room, a living room, a dining room, as well as a kitchen with an island and a large pantry.
With 822 square feet of living space, the upper floor includes a bathroom with a large ceramic shower, a closet for the washer and dryer, and three bedrooms.
Additional info
Measurements: Imperial| House style | Urban |
Construction price
Approximate amount equivalent to what it would cost to have a general contractor (Montreal's South Shore region) build a similar home, excluding the lot and the infrastructure.
|
389364 $ |
|---|---|---|---|
| Front | 40 ft 10 in | Total living surface | 1648 ft² |
| Depth | 35 ft | Bathrooms | 1 |
| Height | 30 ft 11 in | Bedrooms | 3 |
| Master bedroom | N / A | ||
| First floor area | 826 ft² | Exterior walls | Wood + Stone |
| Second floor area | 822 ft² | Kitchen | L-shaped + Island |
| Garage area | 341 ft² | Garages | 1 |
| Garage wall | 8 ft | First floor wall | 9 ft |
| Second floor wall | 8 ft | Front/back roof slope | 6/12 |
| Left/right roof slope | 6/12 |
| House style | Urban |
|---|---|
|
Construction price
Approximate amount equivalent to what it would cost to have a general contractor (Montreal's South Shore region) build a similar home, excluding the lot and the infrastructure.
|
389364 $ |
| Front | 40 ft 10 in |
| Total living surface | 1648 ft² |
| Depth | 35 ft |
| Bathrooms | 1 |
| Height | 30 ft 11 in |
| Bedrooms | 3 |
| Master bedroom | N / A |
| First floor area | 826 ft² |
| Exterior walls | Wood + Stone |
| Second floor area | 822 ft² |
| Kitchen | L-shaped + Island |
| Garage area | 341 ft² |
| Garages | 1 |
| Garage wall | 8 ft |
| First floor wall | 9 ft |
| Second floor wall | 8 ft |
| Front/back roof slope | 6/12 |
| Left/right roof slope | 6/12 |