Description
Modern and elegant, this two-storey urban house is characterized by a graceful facing of brick, stone and wood. It is 46 feet wide by 52 feet deep and provides a 2,979 square foot living area in addition to 450 square foot two-car garage.
The ground floor features 1,365 square feet of living space. It includes a large entrance hall, a powder room, a laundry room, a living room overlooking both floors, an open kitchen with a central island and a breakfast nook, a dining room, and a family room with an 11-foot high ceiling, several large windows and a gas fireplace.
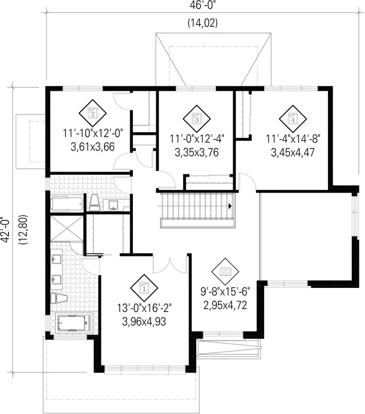
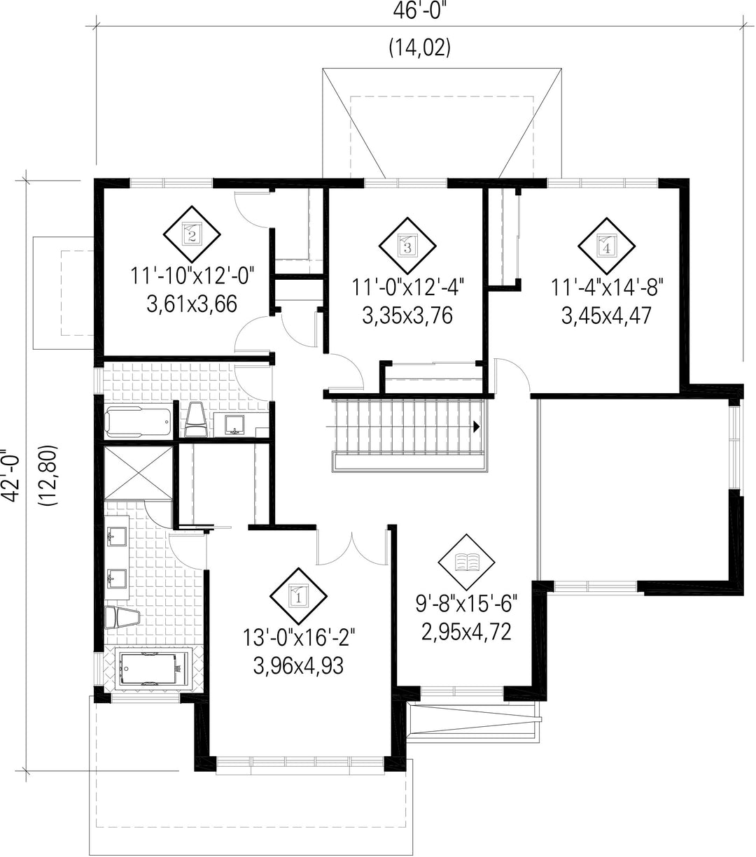
Providing 1,614 square feet of living space, the upper floor features a mezzanine that can be used as a home office, a family bathroom and four bedrooms, including a master bedroom with French doors, a walk-in closet and a private bathroom.
The ground floor features 1,365 square feet of living space. It includes a large entrance hall, a powder room, a laundry room, a living room overlooking both floors, an open kitchen with a central island and a breakfast nook, a dining room, and a family room with an 11-foot high ceiling, several large windows and a gas fireplace.
Providing 1,614 square feet of living space, the upper floor features a mezzanine that can be used as a home office, a family bathroom and four bedrooms, including a master bedroom with French doors, a walk-in closet and a private bathroom.
Additional info
Measurements: Imperial| House style | Urban |
Construction price
Approximate amount equivalent to what it would cost to have a general contractor (Montreal's South Shore region) build a similar home, excluding the lot and the infrastructure.
|
697066 $ |
|---|---|---|---|
| Front | 46 ft | Total living surface | 2979 ft² |
| Depth | 52 ft | Bathrooms | 2 |
| Height | 33 ft 8 in | Bedrooms | 4 |
| Master bedroom | Bathtub + Shower + Double sink + Wardrobe + Double doors + Toilet | ||
| First floor area | 1365 ft² | Exterior walls | Aggregates + Wood + Brick + Stone |
| Second floor area | 1614 ft² | Kitchen | L-shaped + Island |
| Garage area | 450 ft² | Garages | 2 |
| Garage wall | 8 ft | First floor wall | 9 + 10 ft |
| Second floor wall | 8 ft | Front/back roof slope | 7/12 |
| Left/right roof slope | 7/12 |
| House style | Urban |
|---|---|
|
Construction price
Approximate amount equivalent to what it would cost to have a general contractor (Montreal's South Shore region) build a similar home, excluding the lot and the infrastructure.
|
697066 $ |
| Front | 46 ft |
| Total living surface | 2979 ft² |
| Depth | 52 ft |
| Bathrooms | 2 |
| Height | 33 ft 8 in |
| Bedrooms | 4 |
| Master bedroom | Bathtub + Shower + Double sink + Wardrobe + Double doors + Toilet |
| First floor area | 1365 ft² |
| Exterior walls | Aggregates + Wood + Brick + Stone |
| Second floor area | 1614 ft² |
| Kitchen | L-shaped + Island |
| Garage area | 450 ft² |
| Garages | 2 |
| Garage wall | 8 ft |
| First floor wall | 9 + 10 ft |
| Second floor wall | 8 ft |
| Front/back roof slope | 7/12 |
| Left/right roof slope | 7/12 |