Description
This modern two-storey house stands out with its immaculate stone, brick and aluminum exterior. The home is 34 feet wide by 32 feet deep and has 1,364 square feet of living space.
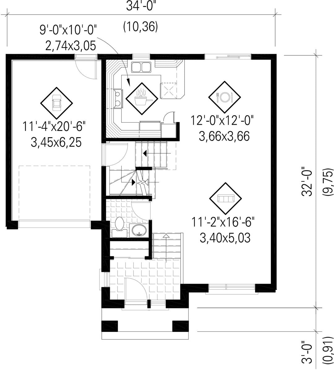
With a 682 square foot living area, the ground floor includes a powder room, an open living and a dining area, a functional kitchen and a 264 square foot one-car garage.
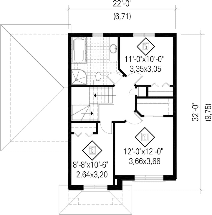
The second floor covers 682 square feet and includes three bedrooms and a bathroom.
With a 682 square foot living area, the ground floor includes a powder room, an open living and a dining area, a functional kitchen and a 264 square foot one-car garage.
The second floor covers 682 square feet and includes three bedrooms and a bathroom.
Additional info
Measurements: Imperial| House style | Urban |
Construction price
Approximate amount equivalent to what it would cost to have a general contractor (Montreal's South Shore region) build a similar home, excluding the lot and the infrastructure.
|
334675 $ |
|---|---|---|---|
| Front | 34 ft | Total living surface | 1364 ft² |
| Depth | 32 ft | Bathrooms | 1 |
| Height | 31 ft 4 in | Bedrooms | 3 |
| Master bedroom | Wardrobe | ||
| First floor area | 682 ft² | Exterior walls | Aluminum + Brick + Stone |
| Second floor area | 682 ft² | Kitchen | Meal counter + U-shape |
| Garage area | 264 ft² | Garages | 1 |
| Garage wall | 8 ft | First floor wall | 8 ft |
| Second floor wall | 8 ft | Front/back roof slope | 8/12 |
| Left/right roof slope | 8/12 |
| House style | Urban |
|---|---|
|
Construction price
Approximate amount equivalent to what it would cost to have a general contractor (Montreal's South Shore region) build a similar home, excluding the lot and the infrastructure.
|
334675 $ |
| Front | 34 ft |
| Total living surface | 1364 ft² |
| Depth | 32 ft |
| Bathrooms | 1 |
| Height | 31 ft 4 in |
| Bedrooms | 3 |
| Master bedroom | Wardrobe |
| First floor area | 682 ft² |
| Exterior walls | Aluminum + Brick + Stone |
| Second floor area | 682 ft² |
| Kitchen | Meal counter + U-shape |
| Garage area | 264 ft² |
| Garages | 1 |
| Garage wall | 8 ft |
| First floor wall | 8 ft |
| Second floor wall | 8 ft |
| Front/back roof slope | 8/12 |
| Left/right roof slope | 8/12 |