Description
This lovely split-level is truly representative of the urban architectural style with its aluminum, brick, stone and wood facing. The house is 42 feet 10 inches wide by 38 feet deep and provides a 1,616 square foot living area, including a 352 square foot one-car garage bed by a long ribbon window on the side wall.
On the ground floor, the ceiling is 10 feet high in the 1,000 square foot open living area. It features a powder room and laundry room next to the garage, a living room, a dining room, a large kitchen with an island that is wide enough to include a cooking plate and an eating area with stools, as well as a long storage wall that includes the fridge and the ovens.
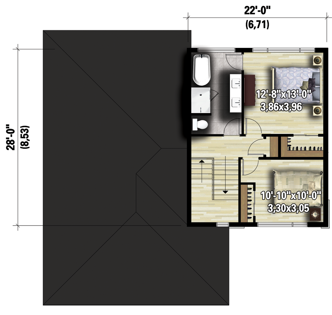
With 616 square feet of living space and nine-foot high ceilings, the second floor features two bedrooms, including a master bedroom with a walk-in closet and access to the family bathroom complete with freestanding bathtub, glass shower and a vanity with twin sinks.
On the ground floor, the ceiling is 10 feet high in the 1,000 square foot open living area. It features a powder room and laundry room next to the garage, a living room, a dining room, a large kitchen with an island that is wide enough to include a cooking plate and an eating area with stools, as well as a long storage wall that includes the fridge and the ovens.
With 616 square feet of living space and nine-foot high ceilings, the second floor features two bedrooms, including a master bedroom with a walk-in closet and access to the family bathroom complete with freestanding bathtub, glass shower and a vanity with twin sinks.
Additional info
Measurements: Imperial| House style | Urban |
Construction price
Approximate amount equivalent to what it would cost to have a general contractor (Montreal's South Shore region) build a similar home, excluding the lot and the infrastructure.
|
393180 $ |
|---|---|---|---|
| Front | 42 ft 10 in | Total living surface | 1616 ft² |
| Depth | 38 ft | Bathrooms | 1 |
| Height | 24 ft 6 in | Bedrooms | 2 |
| Master bedroom | Wardrobe | ||
| First floor area | 1000 ft² | Exterior walls | Aluminum + Wood + Brick + Stone |
| Second floor area | 616 ft² | Kitchen | Meal counter + Laboratory |
| Garage area | 352 ft² | Garages | 1 |
| Garage wall | 8 ft | First floor wall | 10 ft |
| Second floor wall | 9 ft | Front/back roof slope | 4/12 |
| Left/right roof slope | 4/12 |
| House style | Urban |
|---|---|
|
Construction price
Approximate amount equivalent to what it would cost to have a general contractor (Montreal's South Shore region) build a similar home, excluding the lot and the infrastructure.
|
393180 $ |
| Front | 42 ft 10 in |
| Total living surface | 1616 ft² |
| Depth | 38 ft |
| Bathrooms | 1 |
| Height | 24 ft 6 in |
| Bedrooms | 2 |
| Master bedroom | Wardrobe |
| First floor area | 1000 ft² |
| Exterior walls | Aluminum + Wood + Brick + Stone |
| Second floor area | 616 ft² |
| Kitchen | Meal counter + Laboratory |
| Garage area | 352 ft² |
| Garages | 1 |
| Garage wall | 8 ft |
| First floor wall | 10 ft |
| Second floor wall | 9 ft |
| Front/back roof slope | 4/12 |
| Left/right roof slope | 4/12 |