Description
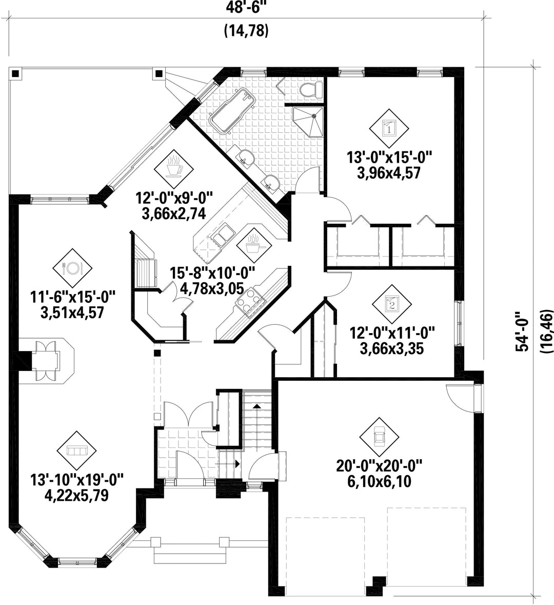
This impressive brick bungalow has a large bow window in the front. The house is 48 feet 6 inches wide by 54 feet deep and provides 1,690 square feet of living space as well as a 464 square foot two-car garage.
The house has a living room and a dining room divided by a see through fireplace, a roomy kitchen with a breakfast nook, a large bathroom and two bedrooms, including a master bedroom with two walk-in closets.
The house has a living room and a dining room divided by a see through fireplace, a roomy kitchen with a breakfast nook, a large bathroom and two bedrooms, including a master bedroom with two walk-in closets.
Additional info
Measurements: Imperial| House style | European |
Construction price
Approximate amount equivalent to what it would cost to have a general contractor (Montreal's South Shore region) build a similar home, excluding the lot and the infrastructure.
|
516829 $ |
|---|---|---|---|
| Front | 48 ft 6 in | Total living surface | 1690 ft² |
| Depth | 54 ft | Bathrooms | 1 |
| Height | 29 ft 2 in | Bedrooms | 2 |
| Master bedroom | Wardrobe | ||
| First floor area | 1690 ft² | Exterior walls | Brick |
| Kitchen | Dining area + Meal counter | ||
| Garage area | 464 ft² | Garages | 2 |
| Garage wall | 8 ft | First floor wall | 9 ft |
| Front/back roof slope | 12/12 | ||
| Left/right roof slope | 12/12 |
| House style | European |
|---|---|
|
Construction price
Approximate amount equivalent to what it would cost to have a general contractor (Montreal's South Shore region) build a similar home, excluding the lot and the infrastructure.
|
516829 $ |
| Front | 48 ft 6 in |
| Total living surface | 1690 ft² |
| Depth | 54 ft |
| Bathrooms | 1 |
| Height | 29 ft 2 in |
| Bedrooms | 2 |
| Master bedroom | Wardrobe |
| First floor area | 1690 ft² |
| Exterior walls | Brick |
| Kitchen | Dining area + Meal counter |
| Garage area | 464 ft² |
| Garages | 2 |
| Garage wall | 8 ft |
| First floor wall | 9 ft |
| Front/back roof slope | 12/12 |
| Left/right roof slope | 12/12 |