Description
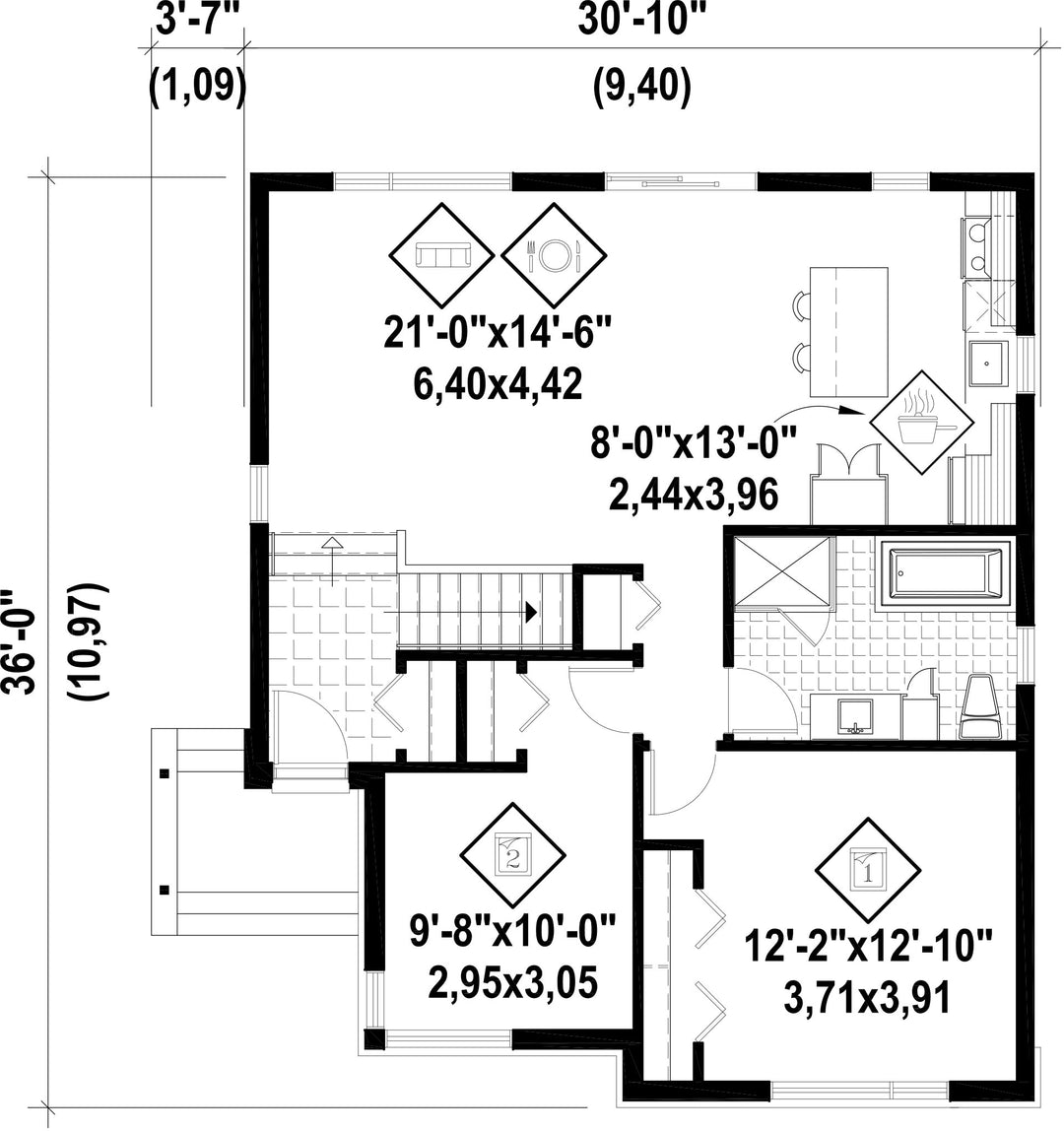
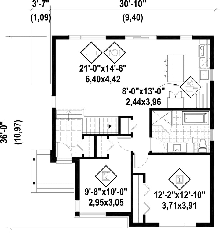
This attractive aluminum, stone and wood bungalow will be an ideal choice for a small family. The house is 30 feet 10 inches wide by 36 feet deep, and provides 1,013 square feet of living space.
This model features a sunken entrance hall, nine-foot high ceilings on the ground floor, and a living area that overlooks the back of the house. The house includes a kitchen with an island, an open dining and a living room, as well as two bedrooms and a bathroom with a separate shower, a podium bathtub and a vanity with storage.
This model features a sunken entrance hall, nine-foot high ceilings on the ground floor, and a living area that overlooks the back of the house. The house includes a kitchen with an island, an open dining and a living room, as well as two bedrooms and a bathroom with a separate shower, a podium bathtub and a vanity with storage.
Additional info
Measurements: Imperial| House style | Urban |
Construction price
Approximate amount equivalent to what it would cost to have a general contractor (Montreal's South Shore region) build a similar home, excluding the lot and the infrastructure.
|
280777 $ |
|---|---|---|---|
| Front | 30 ft 10 in | Total living surface | 1013 ft² |
| Depth | 36 ft | Bathrooms | 1 |
| Height | 20 ft 2 in | Bedrooms | 2 |
| Master bedroom | N / A | ||
| First floor area | 1013 ft² | Exterior walls | Aluminum + Wood + Stone |
| Kitchen | Laboratory + Island | ||
| Garages | 0 | ||
| First floor wall | 9 ft | ||
| Front/back roof slope | 5/12 | ||
| Left/right roof slope | 5/12 |
| House style | Urban |
|---|---|
|
Construction price
Approximate amount equivalent to what it would cost to have a general contractor (Montreal's South Shore region) build a similar home, excluding the lot and the infrastructure.
|
280777 $ |
| Front | 30 ft 10 in |
| Total living surface | 1013 ft² |
| Depth | 36 ft |
| Bathrooms | 1 |
| Height | 20 ft 2 in |
| Bedrooms | 2 |
| Master bedroom | N / A |
| First floor area | 1013 ft² |
| Exterior walls | Aluminum + Wood + Stone |
| Kitchen | Laboratory + Island |
| Garages | 0 |
| First floor wall | 9 ft |
| Front/back roof slope | 5/12 |
| Left/right roof slope | 5/12 |