11773
11773
11773
11773

11773


Jeux de plans - Sets of plans
Regular price$864.00
/

This site is protected by hCaptcha and the hCaptcha Privacy Policy and Terms of Service apply.

Description

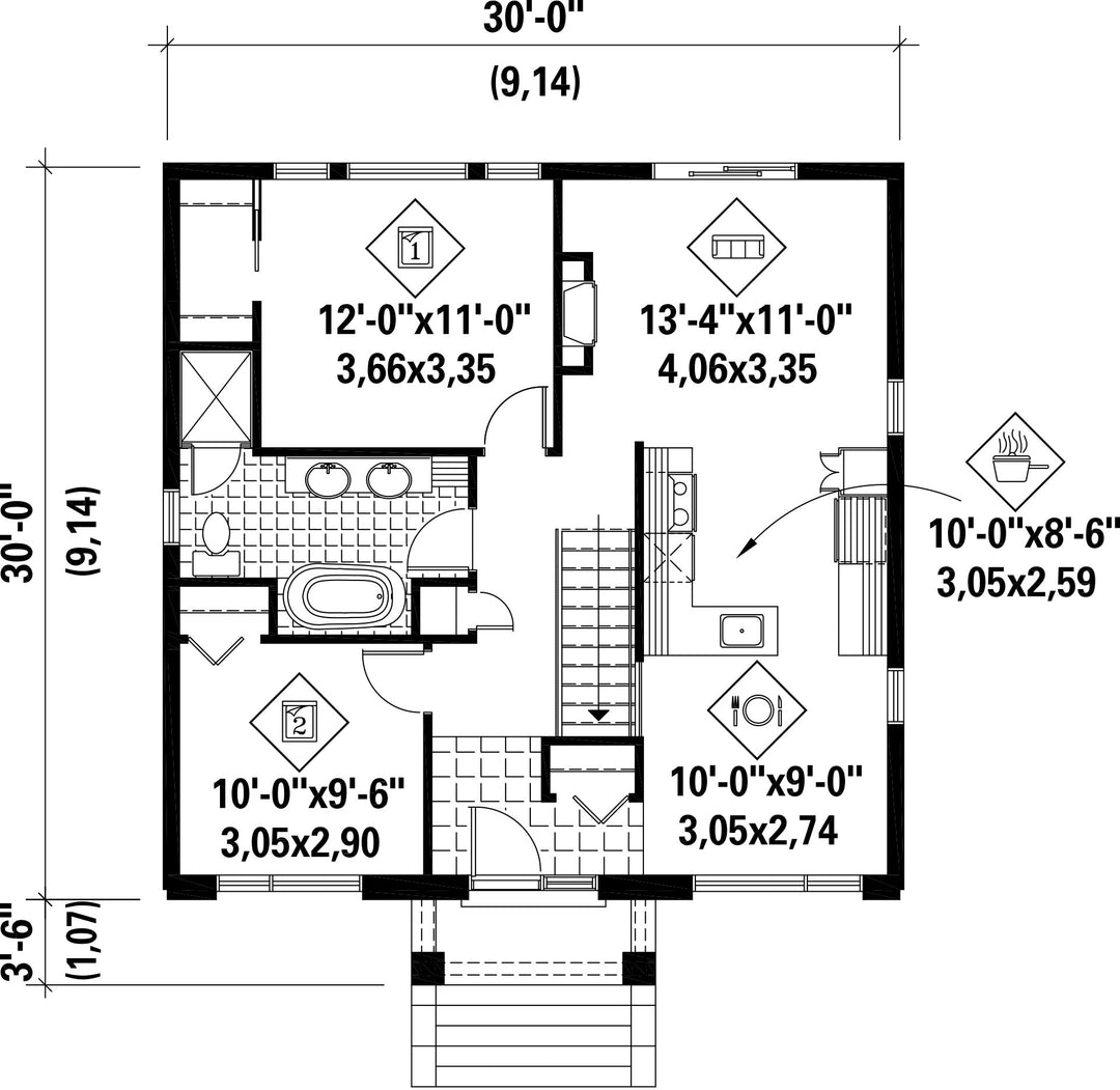
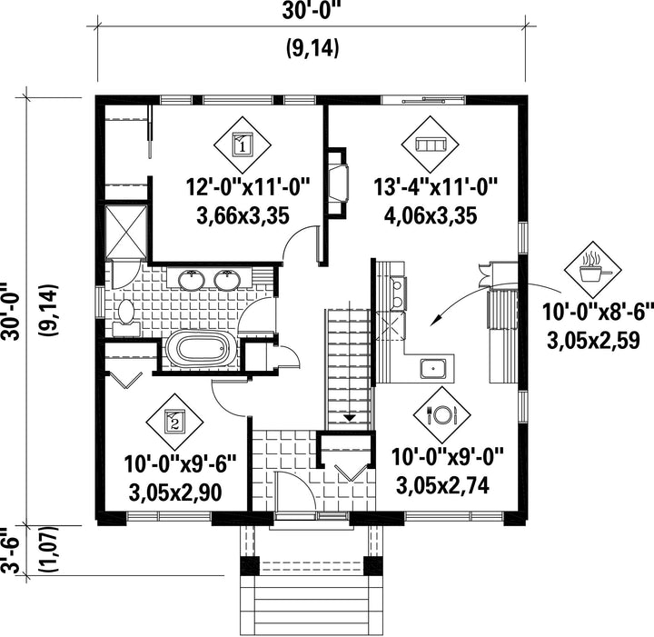
This lovely urban bungalow has a brick and wood siding with a concrete block entrance and several large windows. The house is 30 feet wide by 30 feet deep and provides 900 square feet of living space. Ceilings on the ground floor are 9 feet high and the one in the entrance hall is 12 feet high. The home features a dining room, a U-shaped kitchen, a living room with a gas fireplace, a bathroom with a freestanding bathtub and a large shower, as well as two bedrooms, including a master bedroom with a large walk-in closet.

Additional info

Measurements: Imperial

House style Urban Construction price 
Approximate amount equivalent to what it would cost to have a general contractor (Montreal's South Shore region) build a similar home, excluding the lot and the infrastructure.
252589 $
Front 30 ft Total living surface 900 ft²
Depth 30 ftBathrooms 1
Height 22 ftBedrooms 2
Master bedroom Walk in
First floor area 900 ft² Exterior walls Aluminum + Wood + Brick + Stone
Kitchen U shaped
Garages 0
First floor wall 9 ft
Front/back roof slope 6/12
Left/right roof slope 8/12
House style Urban
Construction price 
Approximate amount equivalent to what it would cost to have a general contractor (Montreal's South Shore region) build a similar home, excluding the lot and the infrastructure.
252589 $
Front 30 ft
Total living surface 900 ft²
Depth 30 ft
Bathrooms 1
Height 22 ft
Bedrooms 2
Master bedroom Walk in
First floor area 900 ft²
Exterior walls Aluminum + Wood + Brick + Stone
Kitchen U shaped
Garages 0
First floor wall 9 ft
Front/back roof slope 6/12
Left/right roof slope 8/12

Ces plans de maison pourraient également vous intéresser


Recently viewed