Description
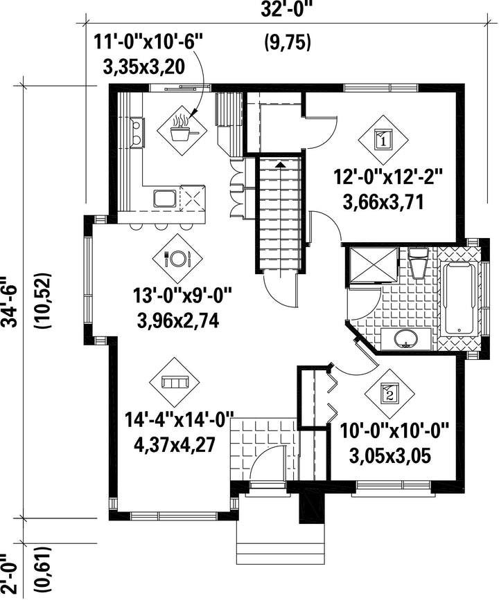
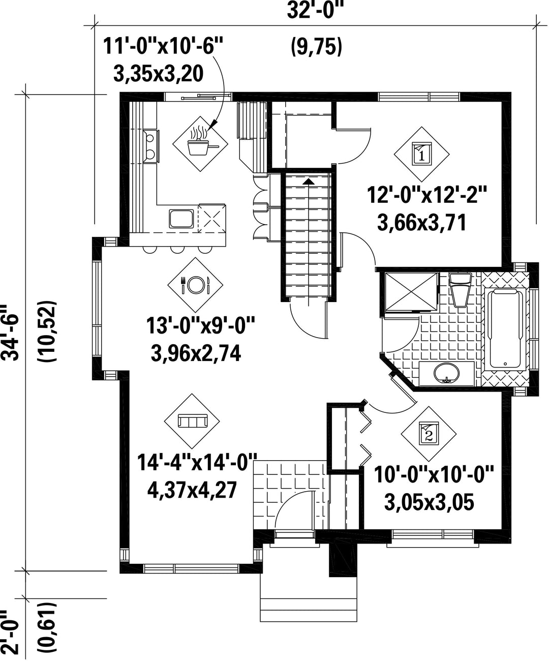
This bungalow has a definite urban look with its brick and wood facing, its small porch and huge windows. The house is 32 feet wide by 34 feet 6 inches deep and provides 969 square feet of living space.
The home includes a living room, an open dining room and kitchen, a bathroom with a wide horizontal window, a large shower and a podium bathtub, as well as two bedrooms, including a master bedroom with a spacious walk-in closet.
The home includes a living room, an open dining room and kitchen, a bathroom with a wide horizontal window, a large shower and a podium bathtub, as well as two bedrooms, including a master bedroom with a spacious walk-in closet.
Additional info
Measurements: Imperial| House style | Urban |
Construction price
Approximate amount equivalent to what it would cost to have a general contractor (Montreal's South Shore region) build a similar home, excluding the lot and the infrastructure.
|
257734 $ |
|---|---|---|---|
| Front | 32 ft | Total living surface | 969 ft² |
| Depth | 34 ft 6 in | Bathrooms | 1 |
| Height | 22 ft 2 in | Bedrooms | 2 |
| Master bedroom | Wardrobe | ||
| First floor area | 969 ft² | Exterior walls | Wood + Brick |
| Kitchen | Meal counter + U-shape | ||
| Garages | 0 | ||
| First floor wall | 8 ft | ||
| Front/back roof slope | 7/12 | ||
| Left/right roof slope | 7/12 |
| House style | Urban |
|---|---|
|
Construction price
Approximate amount equivalent to what it would cost to have a general contractor (Montreal's South Shore region) build a similar home, excluding the lot and the infrastructure.
|
257734 $ |
| Front | 32 ft |
| Total living surface | 969 ft² |
| Depth | 34 ft 6 in |
| Bathrooms | 1 |
| Height | 22 ft 2 in |
| Bedrooms | 2 |
| Master bedroom | Wardrobe |
| First floor area | 969 ft² |
| Exterior walls | Wood + Brick |
| Kitchen | Meal counter + U-shape |
| Garages | 0 |
| First floor wall | 8 ft |
| Front/back roof slope | 7/12 |
| Left/right roof slope | 7/12 |