Description
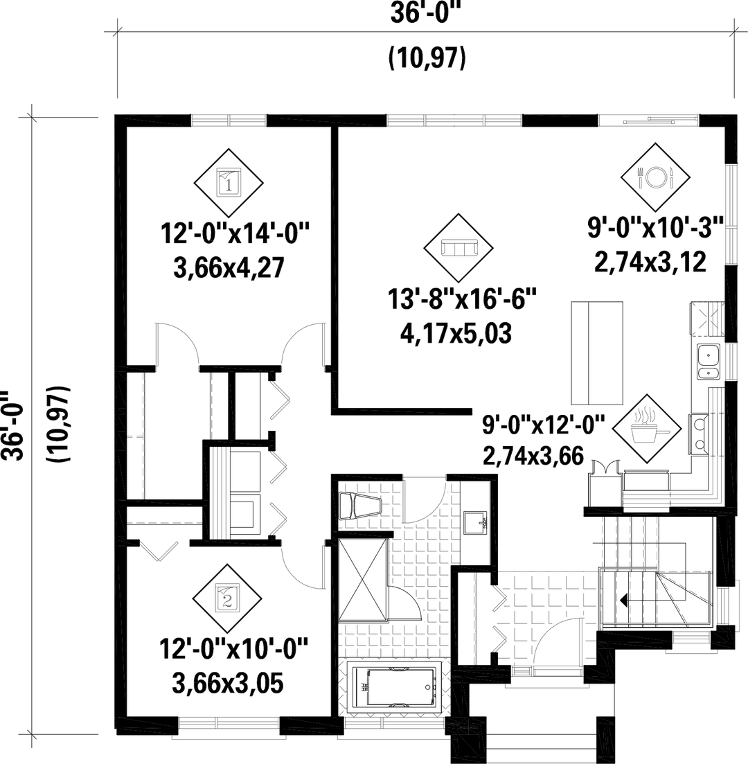
This ultra modern bungalow is characterized by a stone and aluminum facade, a unique porch and unusually located windows. This model provides 1,236 square feet of living space and is 36 feet wide by 36 feet deep.
The house features an entrance hall, an open area that includes a kitchen with a large island, a living room and a dining room, as well as two bedrooms and a bathroom.
The house features an entrance hall, an open area that includes a kitchen with a large island, a living room and a dining room, as well as two bedrooms and a bathroom.
Additional info
Measurements: Imperial| House style | Urban |
Construction price
Approximate amount equivalent to what it would cost to have a general contractor (Montreal's South Shore region) build a similar home, excluding the lot and the infrastructure.
|
335700 $ |
|---|---|---|---|
| Front | 36 ft | Total living surface | 1236 ft² |
| Depth | 36 ft | Bathrooms | 0 |
| Height | 22 ft 11 in | Bedrooms | 2 |
| Master bedroom | Wardrobe | ||
| First floor area | 1236 ft² | Exterior walls | Aluminum + Stone |
| Kitchen | Dining counter + L-shaped layout + Island | ||
| Garages | 0 | ||
| First floor wall | 9 ft | ||
| Front/back roof slope | 6/12 | ||
| Left/right roof slope | 6/12 |
| House style | Urban |
|---|---|
|
Construction price
Approximate amount equivalent to what it would cost to have a general contractor (Montreal's South Shore region) build a similar home, excluding the lot and the infrastructure.
|
335700 $ |
| Front | 36 ft |
| Total living surface | 1236 ft² |
| Depth | 36 ft |
| Bathrooms | 0 |
| Height | 22 ft 11 in |
| Bedrooms | 2 |
| Master bedroom | Wardrobe |
| First floor area | 1236 ft² |
| Exterior walls | Aluminum + Stone |
| Kitchen | Dining counter + L-shaped layout + Island |
| Garages | 0 |
| First floor wall | 9 ft |
| Front/back roof slope | 6/12 |
| Left/right roof slope | 6/12 |