Description
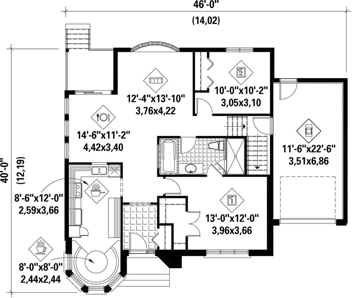
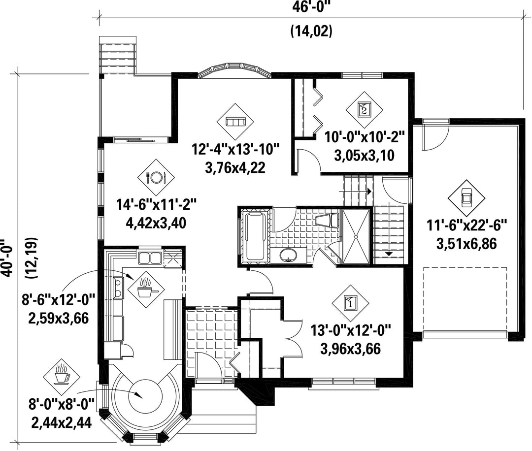
Thanks to decorative moldings, several large windows and a brick and stone facing, this bungalow looks very elegant. This model is 46 feet wide by 40 feet deep and provides 1,151 square feet of living space.
The house includes a closed entrance hall, a living room with a bow window, a dining room, a kitchen with lots of storage and a breakfast nook located in the turret, a bathroom and two bedrooms. The house also has a 288 square foot one-car garage.
The house includes a closed entrance hall, a living room with a bow window, a dining room, a kitchen with lots of storage and a breakfast nook located in the turret, a bathroom and two bedrooms. The house also has a 288 square foot one-car garage.
Additional info
Measurements: Imperial| House style | Rustic |
Construction price
Approximate amount equivalent to what it would cost to have a general contractor (Montreal's South Shore region) build a similar home, excluding the lot and the infrastructure.
|
308013 $ |
|---|---|---|---|
| Front | 46 ft | Total living surface | 1151 ft² |
| Depth | 40 ft | Bathrooms | 1 |
| Height | 24 ft 9 in | Bedrooms | 2 |
| Master bedroom | Bathtub + Shower + Single sink + Wardrobe + Toilet | ||
| First floor area | 1151 ft² | Exterior walls | Aluminum + Brick + Stone |
| Kitchen | Dining area + Laboratory | ||
| Garage area | 288 ft² | Garages | 1 |
| Garage wall | 8 ft | First floor wall | 8 ft |
| Front/back roof slope | 8/12 | ||
| Left/right roof slope | 8/12 |
| House style | Rustic |
|---|---|
|
Construction price
Approximate amount equivalent to what it would cost to have a general contractor (Montreal's South Shore region) build a similar home, excluding the lot and the infrastructure.
|
308013 $ |
| Front | 46 ft |
| Total living surface | 1151 ft² |
| Depth | 40 ft |
| Bathrooms | 1 |
| Height | 24 ft 9 in |
| Bedrooms | 2 |
| Master bedroom | Bathtub + Shower + Single sink + Wardrobe + Toilet |
| First floor area | 1151 ft² |
| Exterior walls | Aluminum + Brick + Stone |
| Kitchen | Dining area + Laboratory |
| Garage area | 288 ft² |
| Garages | 1 |
| Garage wall | 8 ft |
| First floor wall | 8 ft |
| Front/back roof slope | 8/12 |
| Left/right roof slope | 8/12 |