Description
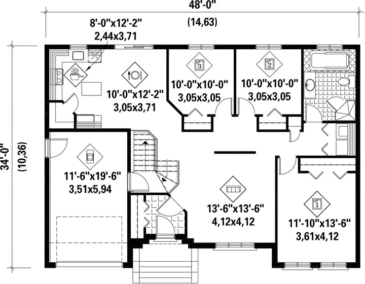
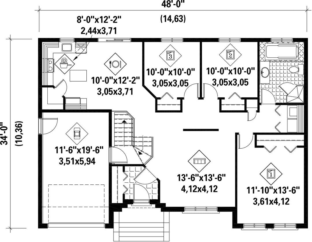
This pretty bungalow with gables and brick and stone facing is 48 feet wide by 34 feet deep, and offers 1,297 square feet of living space in addition to a 263 square foot one-car garage.
Thanks to several windows and a well-planned interior design, the home is bright and inviting. It includes a closed vestibule, a living room, a dining room adjacent to the kitchen, a bathroom, as well as three bedrooms, two of which are identical in size and a bright master bedroom with two large windows.
Thanks to several windows and a well-planned interior design, the home is bright and inviting. It includes a closed vestibule, a living room, a dining room adjacent to the kitchen, a bathroom, as well as three bedrooms, two of which are identical in size and a bright master bedroom with two large windows.
Additional info
Measurements: Imperial| House style | European |
Construction price
Approximate amount equivalent to what it would cost to have a general contractor (Montreal's South Shore region) build a similar home, excluding the lot and the infrastructure.
|
334436 $ |
|---|---|---|---|
| Front | 48 ft | Total living surface | 1297 ft² |
| Depth | 34 ft | Bathrooms | 1 |
| Height | 23 ft 11 in | Bedrooms | 3 |
| Master bedroom | N / A | ||
| First floor area | 1297 ft² | Exterior walls | Aluminum + Brick + Stone |
| Kitchen | Island | ||
| Garage area | 263 ft² | Garages | 1 |
| Garage wall | 8 ft | First floor wall | 8 ft |
| Front/back roof slope | 8/12 | ||
| Left/right roof slope | 12/12 |
| House style | European |
|---|---|
|
Construction price
Approximate amount equivalent to what it would cost to have a general contractor (Montreal's South Shore region) build a similar home, excluding the lot and the infrastructure.
|
334436 $ |
| Front | 48 ft |
| Total living surface | 1297 ft² |
| Depth | 34 ft |
| Bathrooms | 1 |
| Height | 23 ft 11 in |
| Bedrooms | 3 |
| Master bedroom | N / A |
| First floor area | 1297 ft² |
| Exterior walls | Aluminum + Brick + Stone |
| Kitchen | Island |
| Garage area | 263 ft² |
| Garages | 1 |
| Garage wall | 8 ft |
| First floor wall | 8 ft |
| Front/back roof slope | 8/12 |
| Left/right roof slope | 12/12 |