Description
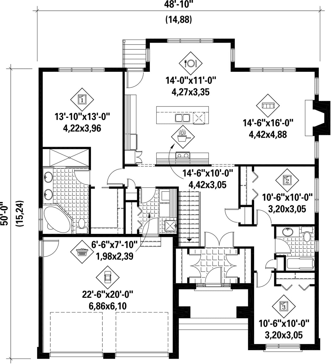
This modern brick and aluminum bungalow has an open porch. The house is 48 feet 10 inches wide by 50 feet deep and provides 1,819 square feet of living space as well as a 496 square foot two-car garage.
The home has a closed vestibule with two closets, a laundry room, a living room with a fireplace, an open kitchen with an island, a dining room with large windows, a large master bedroom with a walk-in closet and a private bathroom, two additional bedrooms and a family bathroom.
The home has a closed vestibule with two closets, a laundry room, a living room with a fireplace, an open kitchen with an island, a dining room with large windows, a large master bedroom with a walk-in closet and a private bathroom, two additional bedrooms and a family bathroom.
Additional info
Measurements: Imperial| House style | Urban |
Construction price
Approximate amount equivalent to what it would cost to have a general contractor (Montreal's South Shore region) build a similar home, excluding the lot and the infrastructure.
|
496944 $ |
|---|---|---|---|
| Front | 48 ft 10 in | Total living surface | 1819 ft² |
| Depth | 50 ft | Bathrooms | 2 |
| Height | 28 ft 1 in | Bedrooms | 3 |
| Master bedroom | Podium bath + Shower + Double sink + Walk in + Toilet | ||
| First floor area | 1819 ft² | Exterior walls | Stucco + Aluminum + Brick |
| Kitchen | Snack + Island | ||
| Garage area | 496 ft² | Garages | 2 |
| Garage wall | 8 ft | First floor wall | 9 ft |
| Front/back roof slope | 8/12 | ||
| Left/right roof slope | 8/12 |
| House style | Urban |
|---|---|
|
Construction price
Approximate amount equivalent to what it would cost to have a general contractor (Montreal's South Shore region) build a similar home, excluding the lot and the infrastructure.
|
496944 $ |
| Front | 48 ft 10 in |
| Total living surface | 1819 ft² |
| Depth | 50 ft |
| Bathrooms | 2 |
| Height | 28 ft 1 in |
| Bedrooms | 3 |
| Master bedroom | Podium bath + Shower + Double sink + Walk in + Toilet |
| First floor area | 1819 ft² |
| Exterior walls | Stucco + Aluminum + Brick |
| Kitchen | Snack + Island |
| Garage area | 496 ft² |
| Garages | 2 |
| Garage wall | 8 ft |
| First floor wall | 9 ft |
| Front/back roof slope | 8/12 |
| Left/right roof slope | 8/12 |