Description
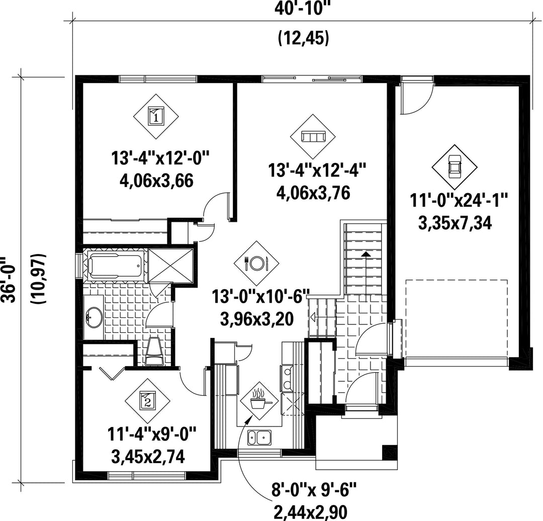
This lovely contemporary bungalow is 40 feet 10 inches wide by 36 feet deep and provides 953 square feet of living space, in addition to a 313 square foot one-car garage with direct access to the backyard.
The home includes a living room, a dining room, a U-shaped kitchen with several cupboards, two bedrooms and a family bathroom.
The home includes a living room, a dining room, a U-shaped kitchen with several cupboards, two bedrooms and a family bathroom.
Additional info
Measurements: Imperial| House style | Urban |
Construction price
Approximate amount equivalent to what it would cost to have a general contractor (Montreal's South Shore region) build a similar home, excluding the lot and the infrastructure.
|
287084 $ |
|---|---|---|---|
| Front | 40 ft 10 in | Total living surface | 953 ft² |
| Depth | 36 ft | Bathrooms | 1 |
| Height | 23 ft 6 in | Bedrooms | 2 |
| First floor area | 953 ft² | Exterior walls | Aluminum + Stone |
| Kitchen | U shaped + Laboratory | ||
| Garage area | 313 ft² | Garages | 1 |
| Garage wall | 8 ft | First floor wall | 8 ft |
| Front/back roof slope | 8/12 | ||
| Left/right roof slope | 8/12 |
| House style | Urban |
|---|---|
|
Construction price
Approximate amount equivalent to what it would cost to have a general contractor (Montreal's South Shore region) build a similar home, excluding the lot and the infrastructure.
|
287084 $ |
| Front | 40 ft 10 in |
| Total living surface | 953 ft² |
| Depth | 36 ft |
| Bathrooms | 1 |
| Height | 23 ft 6 in |
| Bedrooms | 2 |
| First floor area | 953 ft² |
| Exterior walls | Aluminum + Stone |
| Kitchen | U shaped + Laboratory |
| Garage area | 313 ft² |
| Garages | 1 |
| Garage wall | 8 ft |
| First floor wall | 8 ft |
| Front/back roof slope | 8/12 |
| Left/right roof slope | 8/12 |