Description
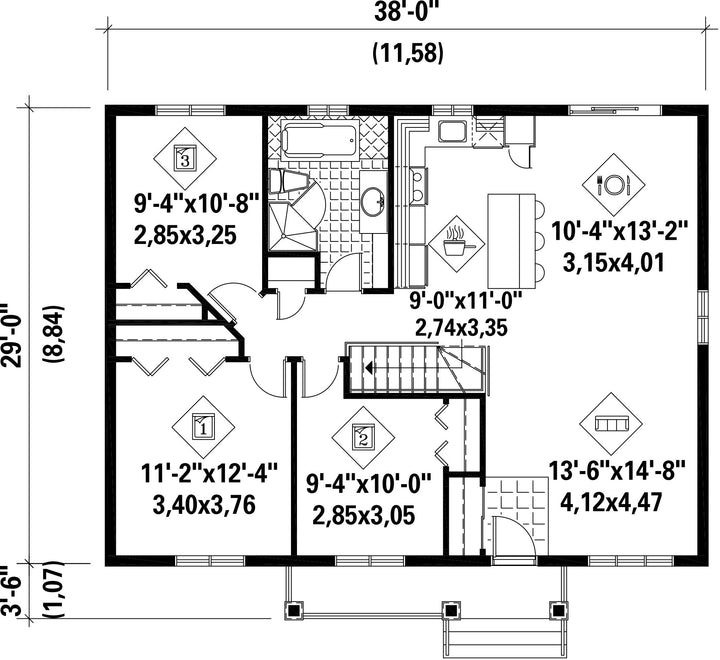
This bungalow stands out with the well-balanced display of natural materials used in the façade, its veranda and decorative shutters. The house is 38 feet wide by 29 feet deep and provides 1,102 square feet of living space.
The open-concept home features a living room, a dining room, a functional kitchen with an island and a lunch counter, a bathroom and three bedrooms.
The open-concept home features a living room, a dining room, a functional kitchen with an island and a lunch counter, a bathroom and three bedrooms.
Additional info
Measurements: Imperial| House style | Country |
Construction price
Approximate amount equivalent to what it would cost to have a general contractor (Montreal's South Shore region) build a similar home, excluding the lot and the infrastructure.
|
280585 $ |
|---|---|---|---|
| Front | 38 ft | Total living surface | 1102 ft² |
| Depth | 29 ft | Bathrooms | 1 |
| Height | 20 ft 3 in | Bedrooms | 3 |
| First floor area | 1102 ft² | Exterior walls | Aluminum + Stone |
| Kitchen | L shaped + Island | ||
| Garages | 0 | ||
| First floor wall | 8 ft | ||
| Front/back roof slope | 6/12 | ||
| Left/right roof slope | 8/12 |
| House style | Country |
|---|---|
|
Construction price
Approximate amount equivalent to what it would cost to have a general contractor (Montreal's South Shore region) build a similar home, excluding the lot and the infrastructure.
|
280585 $ |
| Front | 38 ft |
| Total living surface | 1102 ft² |
| Depth | 29 ft |
| Bathrooms | 1 |
| Height | 20 ft 3 in |
| Bedrooms | 3 |
| First floor area | 1102 ft² |
| Exterior walls | Aluminum + Stone |
| Kitchen | L shaped + Island |
| Garages | 0 |
| First floor wall | 8 ft |
| Front/back roof slope | 6/12 |
| Left/right roof slope | 8/12 |