Description
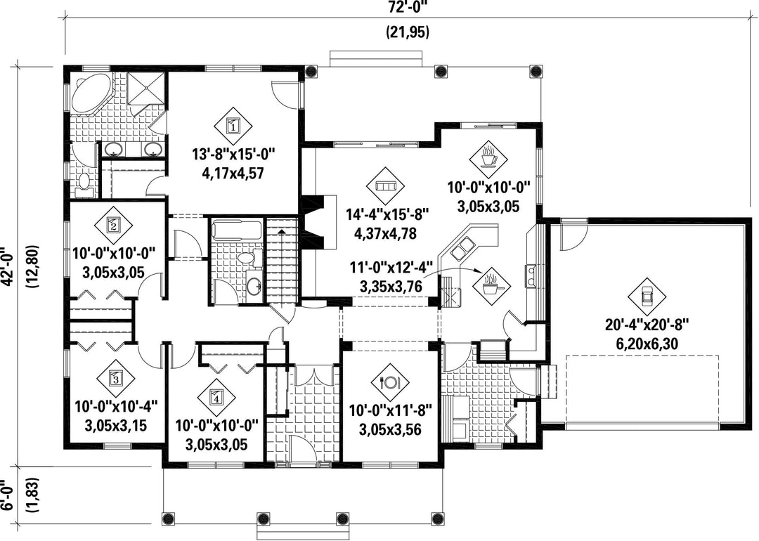
This prestigious bungalow is quite impressive and really stands out with its decorative shutters and its four front pillars. The house is 72 feet wide by 42 feet deep and offers 1,896 square feet of living space.
The home includes a bathroom, a dining room, a living room with fireplace, an open area kitchen with breakfast nook, and four bedrooms including a master bedroom with walk-in closet, private bathroom and access to the rear balcony. The 469 square foot two-car garage has two doors – one that provides access to the house and another that leads to the rear garden.
The home includes a bathroom, a dining room, a living room with fireplace, an open area kitchen with breakfast nook, and four bedrooms including a master bedroom with walk-in closet, private bathroom and access to the rear balcony. The 469 square foot two-car garage has two doors – one that provides access to the house and another that leads to the rear garden.
Additional info
Measurements: Imperial| House style | Country |
Construction price
Approximate amount equivalent to what it would cost to have a general contractor (Montreal's South Shore region) build a similar home, excluding the lot and the infrastructure.
|
513166 $ |
|---|---|---|---|
| Front | 72 ft | Total living surface | 1896 ft² |
| Depth | 42 ft | Bathrooms | 2 |
| Height | 30 ft 2 in | Bedrooms | 4 |
| Master bedroom | Podium bath + Shower + Double sink + Walk in + Toilet | ||
| First floor area | 1896 ft² | Exterior walls | Aluminum |
| Kitchen | Nook + Dining room | ||
| Garage area | 469 ft² | Garages | 2 |
| Garage wall | 8 ft | First floor wall | 9 ft |
| Front/back roof slope | 8/12 | ||
| House style | Country |
|---|---|
|
Construction price
Approximate amount equivalent to what it would cost to have a general contractor (Montreal's South Shore region) build a similar home, excluding the lot and the infrastructure.
|
513166 $ |
| Front | 72 ft |
| Total living surface | 1896 ft² |
| Depth | 42 ft |
| Bathrooms | 2 |
| Height | 30 ft 2 in |
| Bedrooms | 4 |
| Master bedroom | Podium bath + Shower + Double sink + Walk in + Toilet |
| First floor area | 1896 ft² |
| Exterior walls | Aluminum |
| Kitchen | Nook + Dining room |
| Garage area | 469 ft² |
| Garages | 2 |
| Garage wall | 8 ft |
| First floor wall | 9 ft |
| Front/back roof slope | 8/12 |