Description
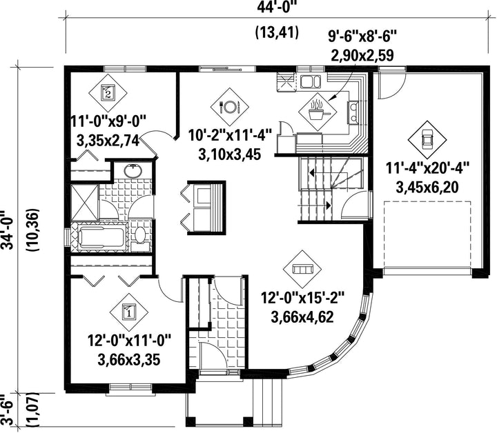
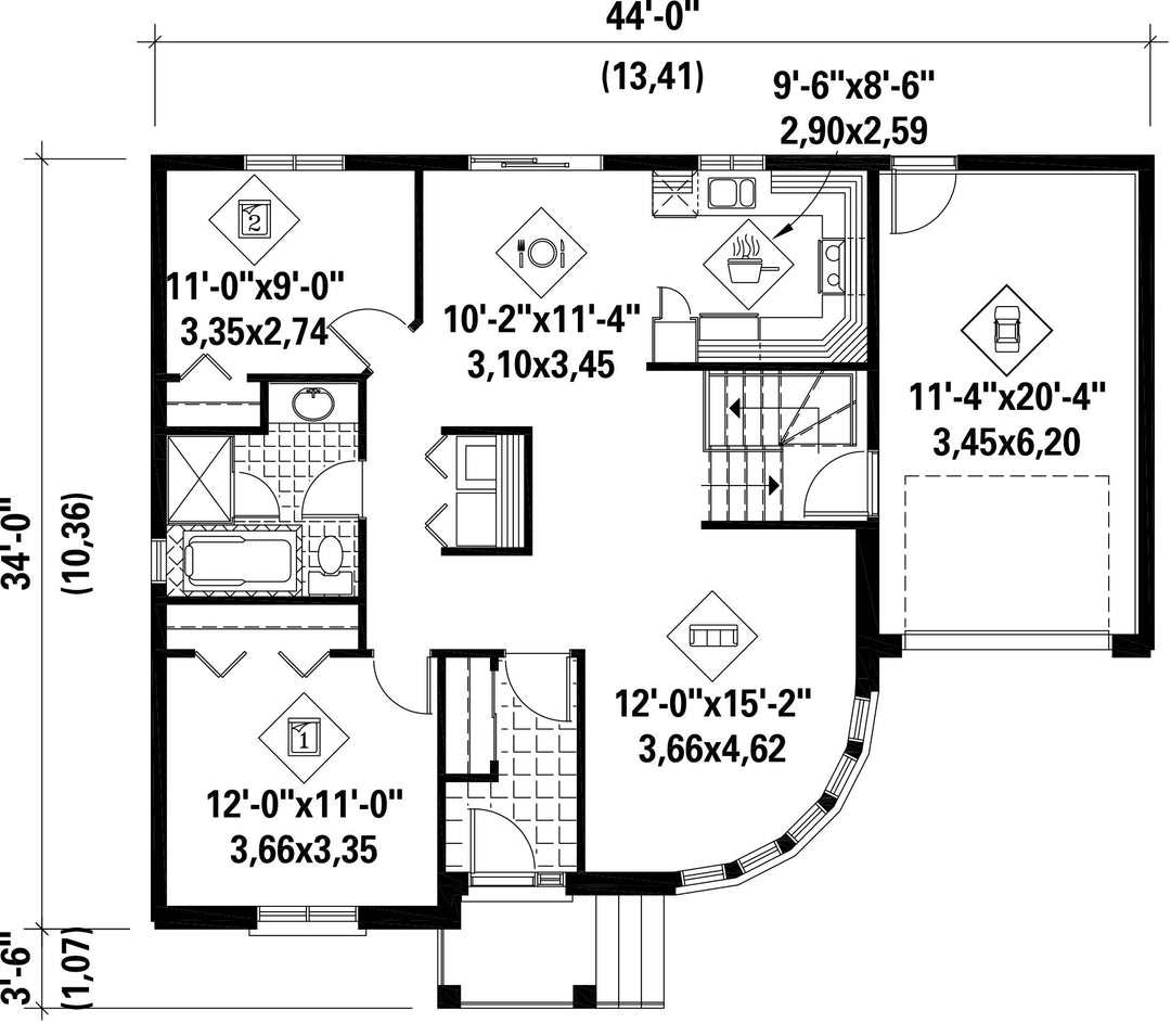
This elegant stone bungalow catches the eye with its rounded wall in the front. The house is 44 feet wide by 34 feet deep and provides 1,042 square feet of living space.
The home's ceilings are nine feet high and it includes a closed vestibule, a living room with large windows, a functional kitchen, a dining room, a bathroom and two bedrooms.
The home's ceilings are nine feet high and it includes a closed vestibule, a living room with large windows, a functional kitchen, a dining room, a bathroom and two bedrooms.
Additional info
Measurements: Imperial| House style | Urban |
Construction price
Approximate amount equivalent to what it would cost to have a general contractor (Montreal's South Shore region) build a similar home, excluding the lot and the infrastructure.
|
286150 $ |
|---|---|---|---|
| Front | 44 ft | Total living surface | 1042 ft² |
| Depth | 34 ft | Bathrooms | 1 |
| Height | 25 ft 5 in | Bedrooms | 2 |
| Master bedroom | N / A | ||
| First floor area | 1042 ft² | Exterior walls | Aluminum + Stone |
| Kitchen | U-shape | ||
| Garage area | 264 ft² | Garages | 1 |
| Garage wall | 8 ft | First floor wall | 9 ft |
| Front/back roof slope | 8/12 | ||
| Left/right roof slope | 8/12 |
| House style | Urban |
|---|---|
|
Construction price
Approximate amount equivalent to what it would cost to have a general contractor (Montreal's South Shore region) build a similar home, excluding the lot and the infrastructure.
|
286150 $ |
| Front | 44 ft |
| Total living surface | 1042 ft² |
| Depth | 34 ft |
| Bathrooms | 1 |
| Height | 25 ft 5 in |
| Bedrooms | 2 |
| Master bedroom | N / A |
| First floor area | 1042 ft² |
| Exterior walls | Aluminum + Stone |
| Kitchen | U-shape |
| Garage area | 264 ft² |
| Garages | 1 |
| Garage wall | 8 ft |
| First floor wall | 9 ft |
| Front/back roof slope | 8/12 |
| Left/right roof slope | 8/12 |