11090
11090
11090

11090


Jeux de plans - Sets of plans
Regular price$1,233.00
/

This site is protected by hCaptcha and the hCaptcha Privacy Policy and Terms of Service apply.

Description

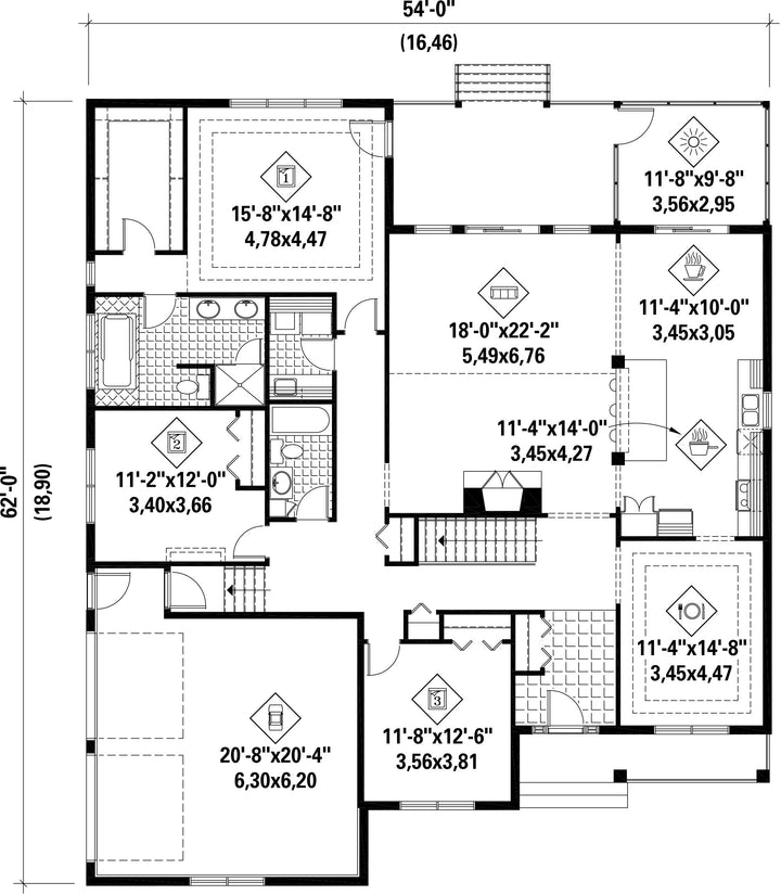
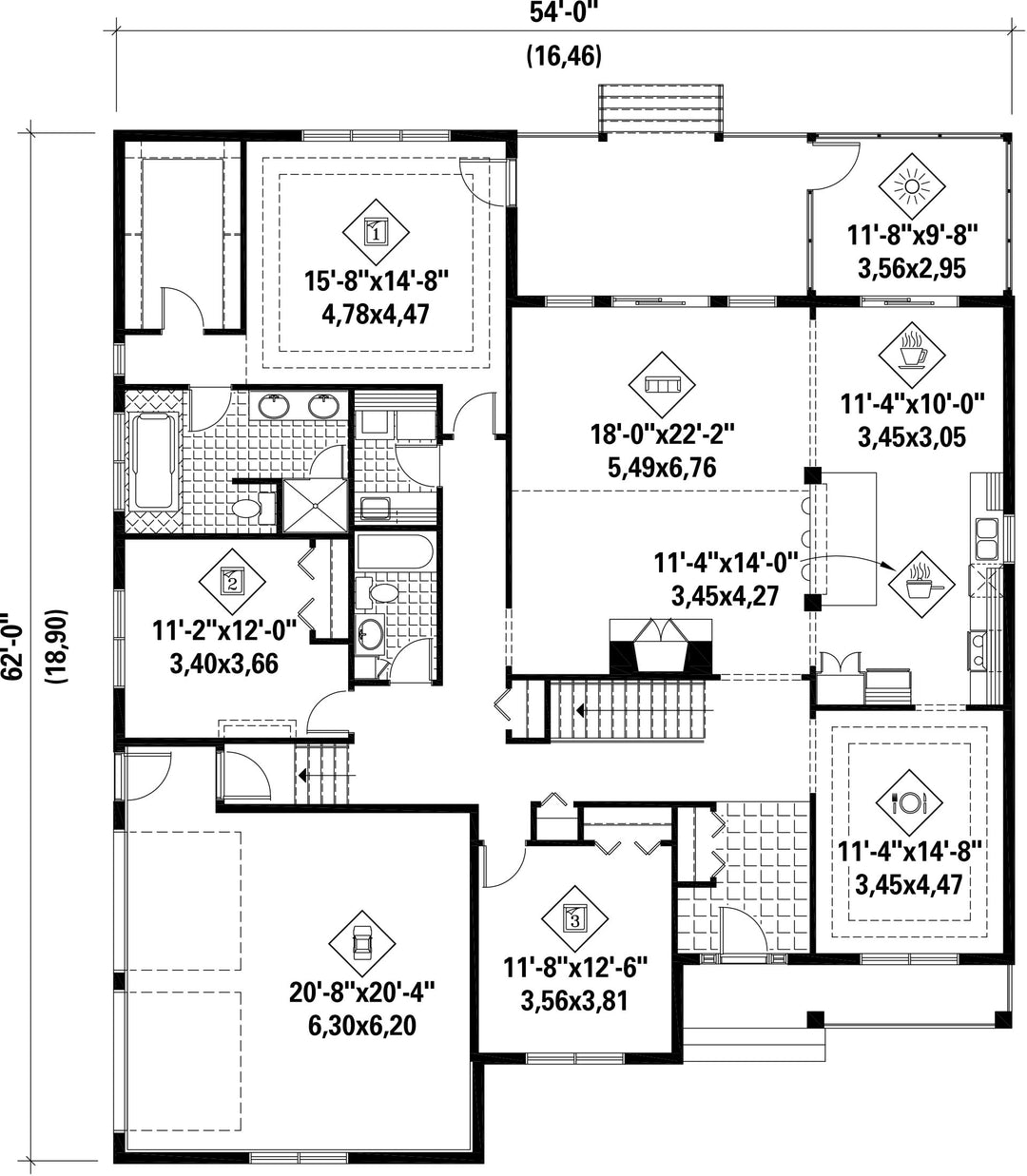
This attractive bungalow stands out with its vertical aluminum siding and cedar gables. The home is 54 feet wide by 62 feet deep, and provides 2,260 square feet of living area.
The house consists of an entrance hall, a spacious kitchen with large work surfaces, a lunch counter and a breakfast nook, a dining room with high ceilings, a large living room with a fireplace, a family bathroom, a laundry room as well as three bedrooms, including a master bedroom with high ceilings, a huge walk-in closet and a private bathroom. A screened porch and a solarium are located at the back of the house. There is also a 476 square foot two-car garage.

Additional info

Measurements: Imperial

House style Country Construction price 
Approximate amount equivalent to what it would cost to have a general contractor (Montreal's South Shore region) build a similar home, excluding the lot and the infrastructure.
610092 $
Front 54 ft Total living surface 2260 ft²
Depth 62 ftBathrooms 2
Height 35 ft 7 inBedrooms 3
Master bedroom Bathtub + Shower + Double sink + Walk in + Toilet
First floor area 2260 ft² Exterior walls Aluminum + Cedar
Kitchen Nook + Snack + Dining room + Island
Garage area 476 ft² Garages 2
Garage wall 8 ftFirst floor wall 9 + 10 ft
Front/back roof slope 8/12
House style Country
Construction price 
Approximate amount equivalent to what it would cost to have a general contractor (Montreal's South Shore region) build a similar home, excluding the lot and the infrastructure.
610092 $
Front 54 ft
Total living surface 2260 ft²
Depth 62 ft
Bathrooms 2
Height 35 ft 7 in
Bedrooms 3
Master bedroom Bathtub + Shower + Double sink + Walk in + Toilet
First floor area 2260 ft²
Exterior walls Aluminum + Cedar
Kitchen Nook + Snack + Dining room + Island
Garage area 476 ft²
Garages 2
Garage wall 8 ft
First floor wall 9 + 10 ft
Front/back roof slope 8/12

Ces plans de maison pourraient également vous intéresser


Recently viewed