Description
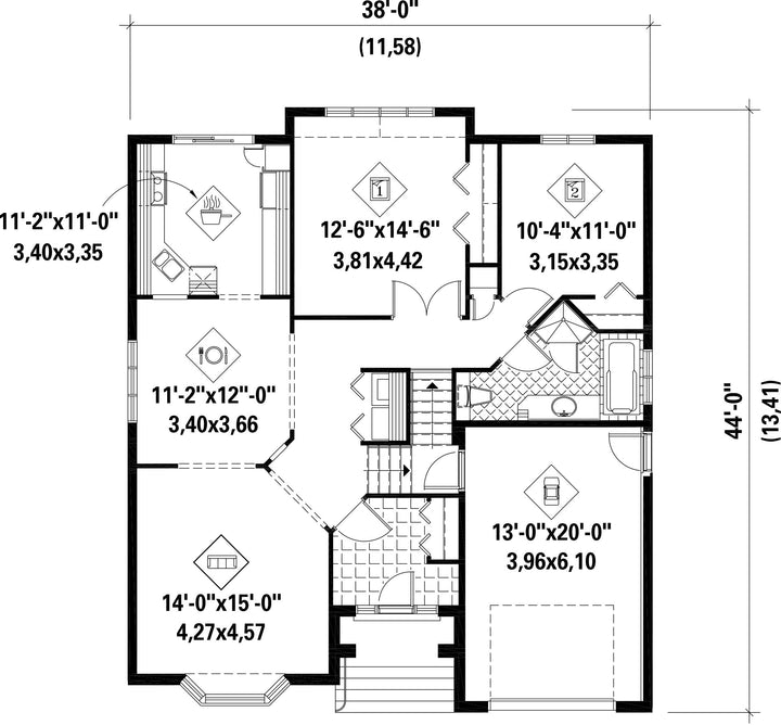
This bungalow is most elegant with its decorative moldings, small porch and bow window. The house is 38 feet wide by 44 feet deep and provides 1,257 square feet of living space, in addition to a 287 square foot one-car garage.
The home consists of a closed entrance hall with a 10 foot ceiling, a U-shaped kitchen, a living room, a dining room, a large laundry area, a bathroom, and two bedrooms including a master bedroom with French doors.
The home consists of a closed entrance hall with a 10 foot ceiling, a U-shaped kitchen, a living room, a dining room, a large laundry area, a bathroom, and two bedrooms including a master bedroom with French doors.
Additional info
Measurements: Imperial| House style | European |
Construction price
Approximate amount equivalent to what it would cost to have a general contractor (Montreal's South Shore region) build a similar home, excluding the lot and the infrastructure.
|
332099 $ |
|---|---|---|---|
| Front | 38 ft | Total living surface | 1257 ft² |
| Depth | 44 ft | Bathrooms | 1 |
| Height | 26 ft 10 in | Bedrooms | 2 |
| Master bedroom | Double doors | ||
| First floor area | 1257 ft² | Exterior walls | Aggregates + Stone |
| Kitchen | U-shaped + Dining room | ||
| Garage area | 287 ft² | Garages | 1 |
| Garage wall | 8 ft | First floor wall | 8 ft |
| Front/back roof slope | 8/12 | ||
| Left/right roof slope | 12/12 |
| House style | European |
|---|---|
|
Construction price
Approximate amount equivalent to what it would cost to have a general contractor (Montreal's South Shore region) build a similar home, excluding the lot and the infrastructure.
|
332099 $ |
| Front | 38 ft |
| Total living surface | 1257 ft² |
| Depth | 44 ft |
| Bathrooms | 1 |
| Height | 26 ft 10 in |
| Bedrooms | 2 |
| Master bedroom | Double doors |
| First floor area | 1257 ft² |
| Exterior walls | Aggregates + Stone |
| Kitchen | U-shaped + Dining room |
| Garage area | 287 ft² |
| Garages | 1 |
| Garage wall | 8 ft |
| First floor wall | 8 ft |
| Front/back roof slope | 8/12 |
| Left/right roof slope | 12/12 |