Description
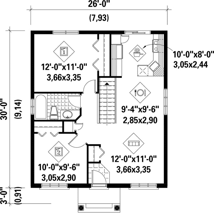
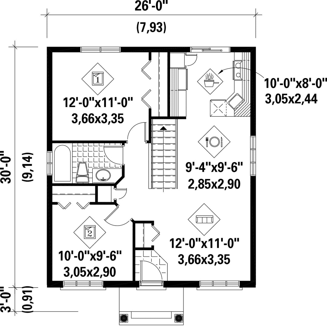
This seemingly modest bungalow still carries a lot of punch thanks to a small porch with ornamental posts and several decorative moldings. The house is 26 feet wide and 30 feet deep and provides 780 square feet of living space.
The home includes an open living and dining room, a kitchen, two bedrooms and a bathroom.
The home includes an open living and dining room, a kitchen, two bedrooms and a bathroom.
Additional info
Measurements: Imperial| House style | European |
Construction price
Approximate amount equivalent to what it would cost to have a general contractor (Montreal's South Shore region) build a similar home, excluding the lot and the infrastructure.
|
184481 $ |
|---|---|---|---|
| Front | 26 ft | Total living surface | 780 ft² |
| Depth | 30 ft | Bathrooms | 1 |
| Height | 20 ft 7 in | Bedrooms | 2 |
| Master bedroom | N / A | ||
| First floor area | 780 ft² | Exterior walls | Aluminum + Brick |
| Kitchen | Laboratory + Dining Room | ||
| Garages | 0 | ||
| First floor wall | 8 ft | ||
| Front/back roof slope | 8/12 | ||
| Left/right roof slope | 8/12 |
| House style | European |
|---|---|
|
Construction price
Approximate amount equivalent to what it would cost to have a general contractor (Montreal's South Shore region) build a similar home, excluding the lot and the infrastructure.
|
184481 $ |
| Front | 26 ft |
| Total living surface | 780 ft² |
| Depth | 30 ft |
| Bathrooms | 1 |
| Height | 20 ft 7 in |
| Bedrooms | 2 |
| Master bedroom | N / A |
| First floor area | 780 ft² |
| Exterior walls | Aluminum + Brick |
| Kitchen | Laboratory + Dining Room |
| Garages | 0 |
| First floor wall | 8 ft |
| Front/back roof slope | 8/12 |
| Left/right roof slope | 8/12 |