Description
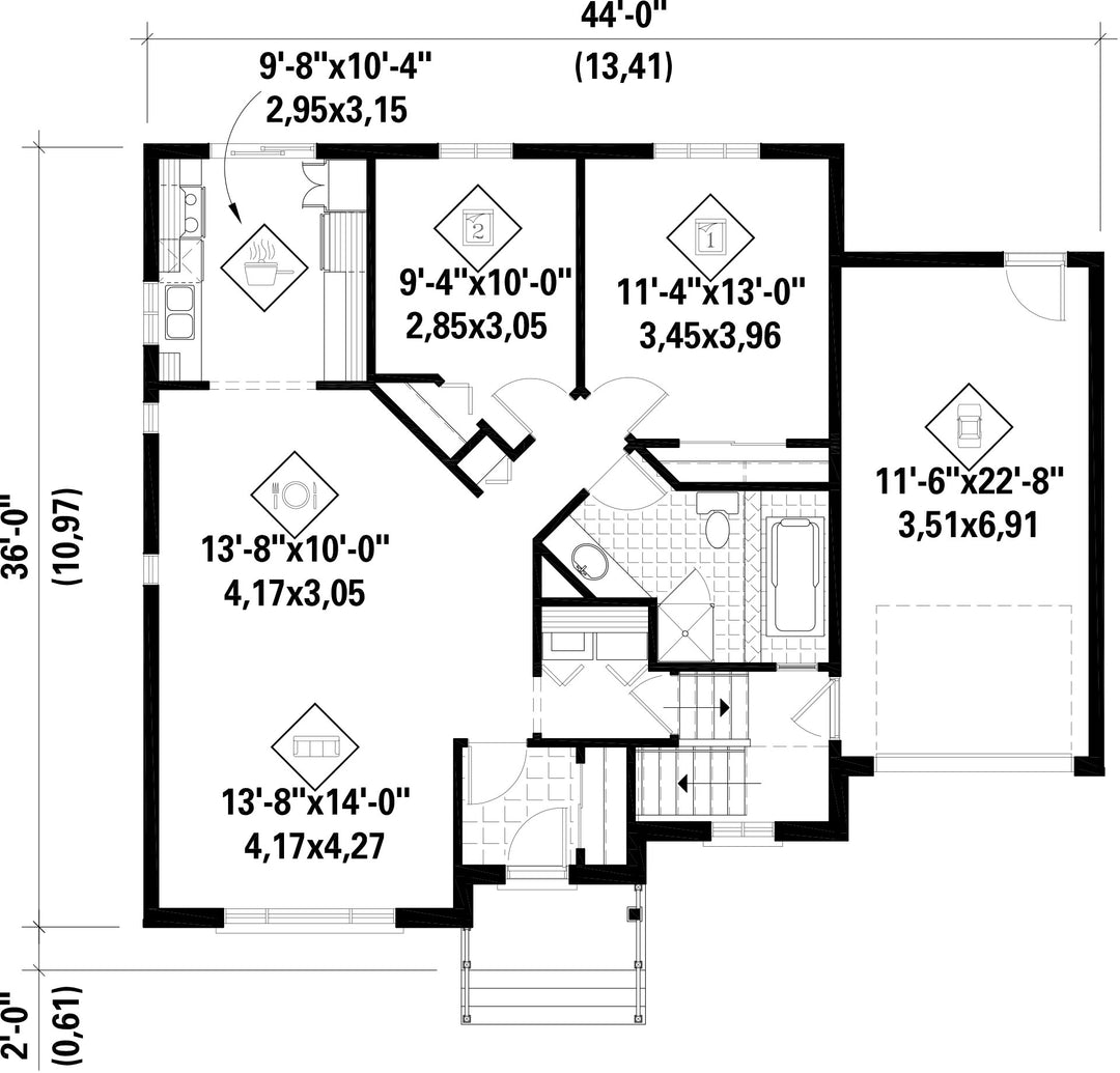
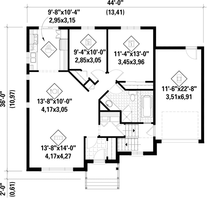
This lovely brick bungalow has a distinctive fish scale facing. The house is 44 feet wide by 36 feet deep and provides 1,101 square feet of living space in addition to a 288 square foot one-car garage.
The home includes a closed entrance hall, an open living and dining room, a laboratory-type kitchen, two bedrooms and a bathroom.
The home includes a closed entrance hall, an open living and dining room, a laboratory-type kitchen, two bedrooms and a bathroom.
Additional info
Measurements: Imperial| House style | Classic |
Construction price
Approximate amount equivalent to what it would cost to have a general contractor (Montreal's South Shore region) build a similar home, excluding the lot and the infrastructure.
|
289527 $ |
|---|---|---|---|
| Front | 44 ft | Total living surface | 1101 ft² |
| Depth | 36 ft | Bathrooms | 1 |
| Height | 25 ft | Bedrooms | 2 |
| Master bedroom | N / A | Master bedroom - comments | --- |
| First floor area | 1101 ft² | Exterior walls | Aluminum + Brick + Fish Scales |
| Kitchen | Laboratory + Dining Room | ||
| Garage area | 288 ft² | Garages | 1 |
| Garage wall | 8 ft | First floor wall | 8 ft |
| Front/back roof slope | 8/12 | ||
| Left/right roof slope | 12/12 |
| House style | Classic |
|---|---|
|
Construction price
Approximate amount equivalent to what it would cost to have a general contractor (Montreal's South Shore region) build a similar home, excluding the lot and the infrastructure.
|
289527 $ |
| Front | 44 ft |
| Total living surface | 1101 ft² |
| Depth | 36 ft |
| Bathrooms | 1 |
| Height | 25 ft |
| Bedrooms | 2 |
| Master bedroom | N / A |
| Master bedroom - comments | --- |
| First floor area | 1101 ft² |
| Exterior walls | Aluminum + Brick + Fish Scales |
| Kitchen | Laboratory + Dining Room |
| Garage area | 288 ft² |
| Garages | 1 |
| Garage wall | 8 ft |
| First floor wall | 8 ft |
| Front/back roof slope | 8/12 |
| Left/right roof slope | 12/12 |