Description
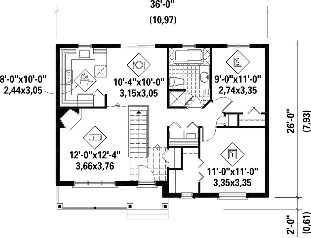
This bungalow has many interesting features such as dormer windows, a front porch with decorative posts, and large shuttered windows. The house is 36 feet wide by 26 feet deep and offers 900 square feet of living space.
The home consists of a living room with a fireplace, a U-shaped kitchen, a dining room, a bathroom and two bedrooms including a master bedroom with a large walk-in closet.
The home consists of a living room with a fireplace, a U-shaped kitchen, a dining room, a bathroom and two bedrooms including a master bedroom with a large walk-in closet.
Additional info
Measurements: Imperial| House style | Rustic |
Construction price
Approximate amount equivalent to what it would cost to have a general contractor (Montreal's South Shore region) build a similar home, excluding the lot and the infrastructure.
|
223301 $ |
|---|---|---|---|
| Front | 36 ft | Total living surface | 900 ft² |
| Depth | 26 ft | Bathrooms | 1 |
| Height | 24 ft 10 in | Bedrooms | 2 |
| Master bedroom | Wardrobe | Master bedroom - comments | --- |
| First floor area | 900 ft² | Exterior walls | Aluminum + Brick |
| Kitchen | U-shaped + Dining room | ||
| Garages | 0 | ||
| First floor wall | 8 ft | ||
| Left/right roof slope | 8/12 |
| House style | Rustic |
|---|---|
|
Construction price
Approximate amount equivalent to what it would cost to have a general contractor (Montreal's South Shore region) build a similar home, excluding the lot and the infrastructure.
|
223301 $ |
| Front | 36 ft |
| Total living surface | 900 ft² |
| Depth | 26 ft |
| Bathrooms | 1 |
| Height | 24 ft 10 in |
| Bedrooms | 2 |
| Master bedroom | Wardrobe |
| Master bedroom - comments | --- |
| First floor area | 900 ft² |
| Exterior walls | Aluminum + Brick |
| Kitchen | U-shaped + Dining room |
| Garages | 0 |
| First floor wall | 8 ft |
| Left/right roof slope | 8/12 |