Description
NULL
Additional info
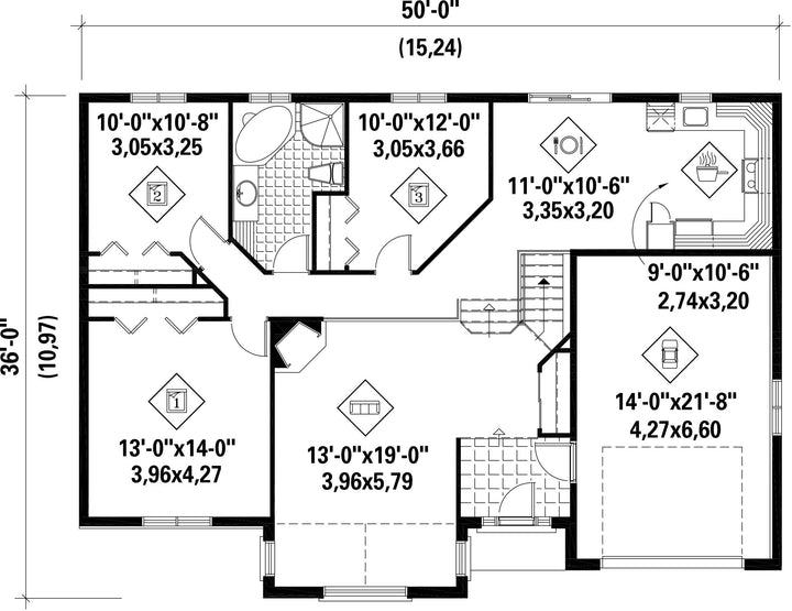
Measurements: Imperial| House style | Classic |
Construction price
Approximate amount equivalent to what it would cost to have a general contractor (Montreal's South Shore region) build a similar home, excluding the lot and the infrastructure.
|
356432 $ |
|---|---|---|---|
| Front | 50 ft | Total living surface | 1341 ft² |
| Depth | 36 ft | Bathrooms | 1 |
| Height | 29 ft | Bedrooms | 3 |
| Master bedroom | N / A | ||
| First floor area | 1341 ft² | Exterior walls | Aluminum + Brick |
| Kitchen | U-shaped + Dining room | ||
| Garage area | 329 ft² | Garages | 1 |
| Garage wall | 8 ft | First floor wall | 8 ft |
| Front/back roof slope | 10/12 | ||
| Left/right roof slope | 12/12 |
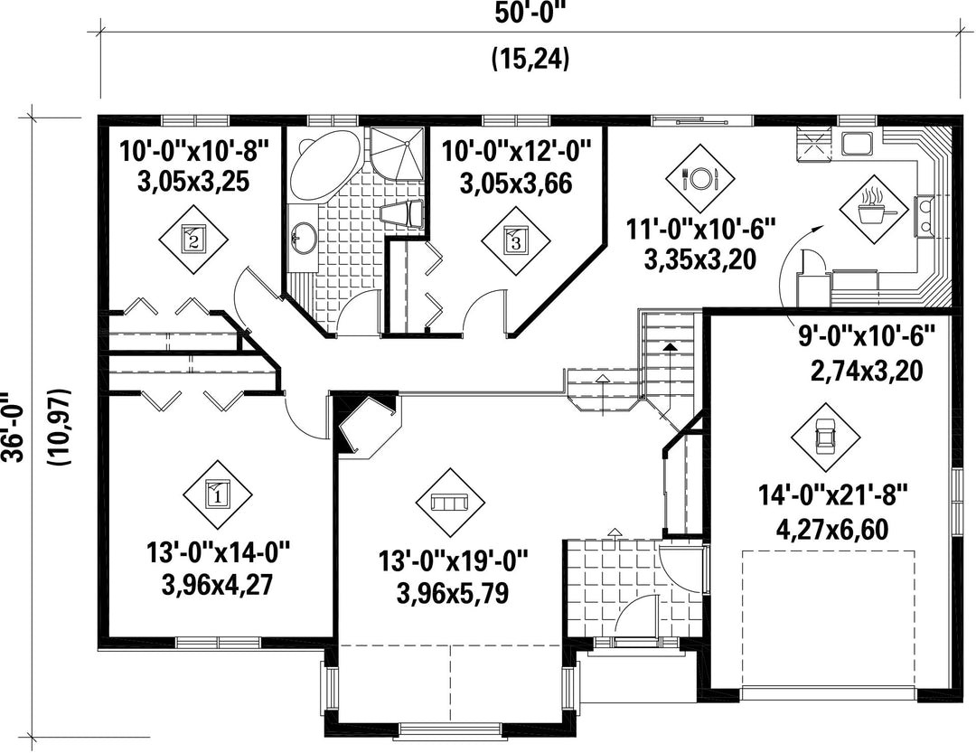
| House style | Classic |
|---|---|
|
Construction price
Approximate amount equivalent to what it would cost to have a general contractor (Montreal's South Shore region) build a similar home, excluding the lot and the infrastructure.
|
356432 $ |
| Front | 50 ft |
| Total living surface | 1341 ft² |
| Depth | 36 ft |
| Bathrooms | 1 |
| Height | 29 ft |
| Bedrooms | 3 |
| Master bedroom | N / A |
| First floor area | 1341 ft² |
| Exterior walls | Aluminum + Brick |
| Kitchen | U-shaped + Dining room |
| Garage area | 329 ft² |
| Garages | 1 |
| Garage wall | 8 ft |
| First floor wall | 8 ft |
| Front/back roof slope | 10/12 |
| Left/right roof slope | 12/12 |