Description
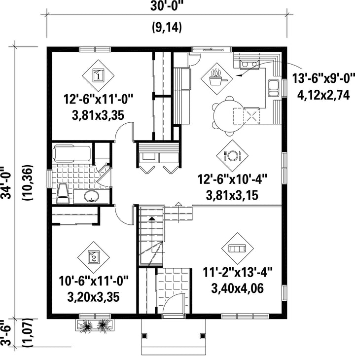
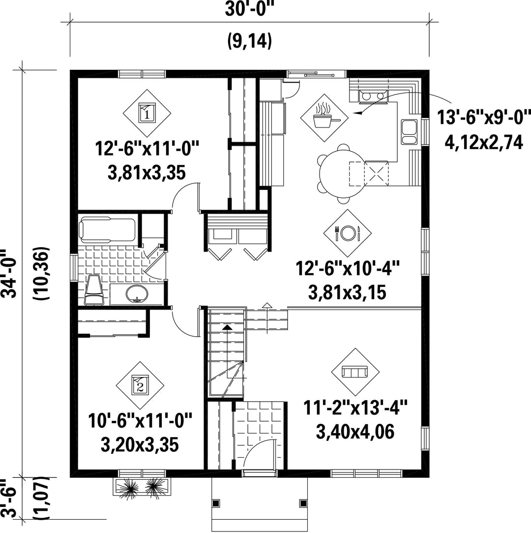
This charming bungalow features a number of attractive architectural details that give it a nice cachet. The house is 30 feet wide by 34 feet deep and provides 1,020 square feet of living space.
The open home includes a U-shaped kitchen with a lunch counter, a dining room, a sunken living room, a bathroom and two bedrooms.
The open home includes a U-shaped kitchen with a lunch counter, a dining room, a sunken living room, a bathroom and two bedrooms.
Additional info
Measurements: Imperial| House style | Country |
Construction price
Approximate amount equivalent to what it would cost to have a general contractor (Montreal's South Shore region) build a similar home, excluding the lot and the infrastructure.
|
235620 $ |
|---|---|---|---|
| Front | 30 ft | Total living surface | 1020 ft² |
| Depth | 34 ft | Bathrooms | 1 |
| Height | 21 ft 1 in | Bedrooms | 2 |
| First floor area | 1020 ft² | Exterior walls | Aluminum |
| Kitchen | Snack + U shaped + Dining room | ||
| Garages | 0 | ||
| First floor wall | 8 ft | ||
| Front/back roof slope | 6/12 | ||
| Left/right roof slope | 10/12 |
| House style | Country |
|---|---|
|
Construction price
Approximate amount equivalent to what it would cost to have a general contractor (Montreal's South Shore region) build a similar home, excluding the lot and the infrastructure.
|
235620 $ |
| Front | 30 ft |
| Total living surface | 1020 ft² |
| Depth | 34 ft |
| Bathrooms | 1 |
| Height | 21 ft 1 in |
| Bedrooms | 2 |
| First floor area | 1020 ft² |
| Exterior walls | Aluminum |
| Kitchen | Snack + U shaped + Dining room |
| Garages | 0 |
| First floor wall | 8 ft |
| Front/back roof slope | 6/12 |
| Left/right roof slope | 10/12 |