Description
Elegant and inviting, this 1,008 square foot bungalow stands out with its small front veranda, brick façade, decorative moldings and flower boxes under the front windows.
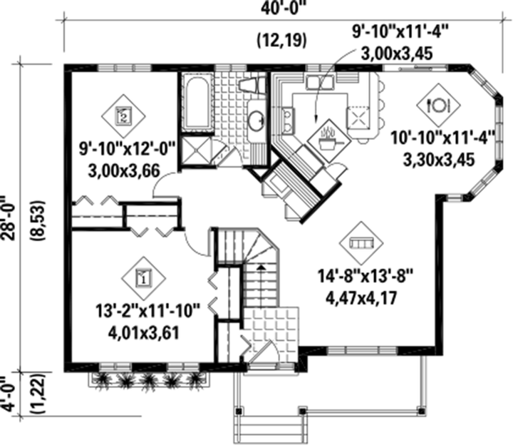
The home includes a kitchen and an open living and dining room with lots of light thanks to a bow window. There is also a laundry room, a bathroom and two bedrooms.
The home includes a kitchen and an open living and dining room with lots of light thanks to a bow window. There is also a laundry room, a bathroom and two bedrooms.
Additional info
Measurements: Imperial| House style | Rustic |
Construction price
Approximate amount equivalent to what it would cost to have a general contractor (Montreal's South Shore region) build a similar home, excluding the lot and the infrastructure.
|
243854 $ |
|---|---|---|---|
| Front | 40 ft | Total living surface | 1008 ft² |
| Depth | 28 ft | Bathrooms | 1 |
| Height | 20 ft 2 in | Bedrooms | 2 |
| Master bedroom | N / A | ||
| First floor area | 1008 ft² | Exterior walls | Aluminum + Brick |
| Kitchen | Meal counter + Dining room | ||
| Garages | 0 | ||
| First floor wall | 8 ft | ||
| Front/back roof slope | 6/12 | ||
| House style | Rustic |
|---|---|
|
Construction price
Approximate amount equivalent to what it would cost to have a general contractor (Montreal's South Shore region) build a similar home, excluding the lot and the infrastructure.
|
243854 $ |
| Front | 40 ft |
| Total living surface | 1008 ft² |
| Depth | 28 ft |
| Bathrooms | 1 |
| Height | 20 ft 2 in |
| Bedrooms | 2 |
| Master bedroom | N / A |
| First floor area | 1008 ft² |
| Exterior walls | Aluminum + Brick |
| Kitchen | Meal counter + Dining room |
| Garages | 0 |
| First floor wall | 8 ft |
| Front/back roof slope | 6/12 |