Description
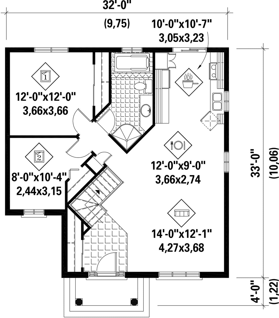
This modest-looking bungalow has a lot of character thanks to a small porch with decorative posts and French corners. The house is 32 feet wide by 33 feet deep and provides 984 square feet of living space.
The house includes an open living and dining room, a functional kitchen, two bedrooms and a bathroom.
The house includes an open living and dining room, a functional kitchen, two bedrooms and a bathroom.
Additional info
Measurements: Imperial| House style | European |
Construction price
Approximate amount equivalent to what it would cost to have a general contractor (Montreal's South Shore region) build a similar home, excluding the lot and the infrastructure.
|
236953 $ |
|---|---|---|---|
| Front | 32 ft | Total living surface | 984 ft² |
| Depth | 33 ft | Bathrooms | 1 |
| Height | 22 ft 9 in | Bedrooms | 2 |
| Master bedroom | N / A | ||
| First floor area | 984 ft² | Exterior walls | Aluminum + Brick |
| Kitchen | Laboratory | ||
| Garages | 0 | ||
| First floor wall | 8 ft | ||
| Front/back roof slope | 7/12 | ||
| House style | European |
|---|---|
|
Construction price
Approximate amount equivalent to what it would cost to have a general contractor (Montreal's South Shore region) build a similar home, excluding the lot and the infrastructure.
|
236953 $ |
| Front | 32 ft |
| Total living surface | 984 ft² |
| Depth | 33 ft |
| Bathrooms | 1 |
| Height | 22 ft 9 in |
| Bedrooms | 2 |
| Master bedroom | N / A |
| First floor area | 984 ft² |
| Exterior walls | Aluminum + Brick |
| Kitchen | Laboratory |
| Garages | 0 |
| First floor wall | 8 ft |
| Front/back roof slope | 7/12 |