Description
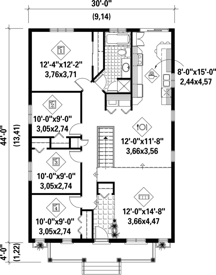
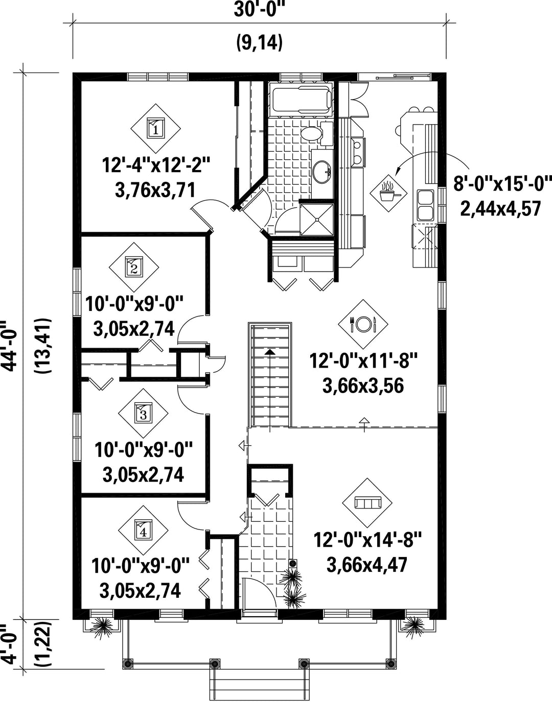
The front entrance, the porch and the decorative columns of this lovely bungalow enhance its appearance. The house is 30 feet wide by 44 feet deep and provides 1,320 square feet of living space.
The entrance and the living room of this roomy house are lower than the rest of the rooms. The bungalow also includes a dining room, a kitchen, a bathroom and four bedrooms.
The entrance and the living room of this roomy house are lower than the rest of the rooms. The bungalow also includes a dining room, a kitchen, a bathroom and four bedrooms.
Additional info
Measurements: Imperial| House style | Country |
Construction price
Approximate amount equivalent to what it would cost to have a general contractor (Montreal's South Shore region) build a similar home, excluding the lot and the infrastructure.
|
314552 $ |
|---|---|---|---|
| Front | 30 ft | Total living surface | 1320 ft² |
| Depth | 44 ft | Bathrooms | 1 |
| Height | 23 ft 3 in | Bedrooms | 4 |
| First floor area | 1320 ft² | Exterior walls | Aluminum + Brick |
| Kitchen | Snack + Laboratory + Dining room | ||
| Garages | 0 | ||
| First floor wall | 8 ft | ||
| Left/right roof slope | 8/12 |
| House style | Country |
|---|---|
|
Construction price
Approximate amount equivalent to what it would cost to have a general contractor (Montreal's South Shore region) build a similar home, excluding the lot and the infrastructure.
|
314552 $ |
| Front | 30 ft |
| Total living surface | 1320 ft² |
| Depth | 44 ft |
| Bathrooms | 1 |
| Height | 23 ft 3 in |
| Bedrooms | 4 |
| First floor area | 1320 ft² |
| Exterior walls | Aluminum + Brick |
| Kitchen | Snack + Laboratory + Dining room |
| Garages | 0 |
| First floor wall | 8 ft |
| Left/right roof slope | 8/12 |