Description
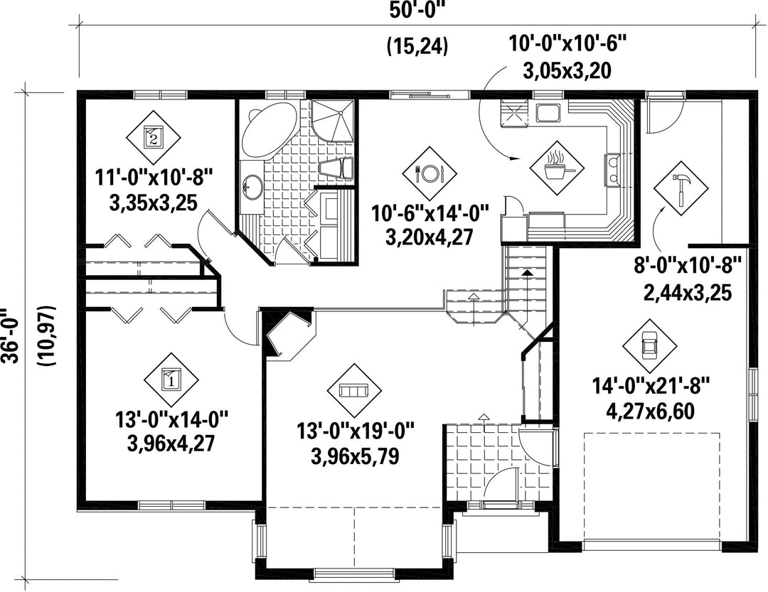
The various gables and the large arched window in the front enhance the appearance of this beautiful bungalow. The house is 50 feet wide by 36 feet deep and provides 1,243 square feet of living space.
The home includes two bedrooms, a bathroom, a functional kitchen, a dining room, a sunny living room with a cathedral ceiling and a corner fireplace. There is also a 427 square foot one-car garage with a workshop area.
The home includes two bedrooms, a bathroom, a functional kitchen, a dining room, a sunny living room with a cathedral ceiling and a corner fireplace. There is also a 427 square foot one-car garage with a workshop area.
Additional info
Measurements: Imperial| House style | Classic |
Construction price
Approximate amount equivalent to what it would cost to have a general contractor (Montreal's South Shore region) build a similar home, excluding the lot and the infrastructure.
|
340173 $ |
|---|---|---|---|
| Front | 50 ft | Total living surface | 1243 ft² |
| Depth | 36 ft | Bathrooms | 1 |
| Height | 29 ft | Bedrooms | 2 |
| Master bedroom | N / A | ||
| First floor area | 1243 ft² | Exterior walls | Aluminum + Brick |
| Kitchen | U-shaped + Dining room | ||
| Garage area | 427 ft² | Garages | 1 |
| Garage wall | 8 ft | First floor wall | 8 ft |
| Front/back roof slope | 10/12 | ||
| Left/right roof slope | 12/12 |
| House style | Classic |
|---|---|
|
Construction price
Approximate amount equivalent to what it would cost to have a general contractor (Montreal's South Shore region) build a similar home, excluding the lot and the infrastructure.
|
340173 $ |
| Front | 50 ft |
| Total living surface | 1243 ft² |
| Depth | 36 ft |
| Bathrooms | 1 |
| Height | 29 ft |
| Bedrooms | 2 |
| Master bedroom | N / A |
| First floor area | 1243 ft² |
| Exterior walls | Aluminum + Brick |
| Kitchen | U-shaped + Dining room |
| Garage area | 427 ft² |
| Garages | 1 |
| Garage wall | 8 ft |
| First floor wall | 8 ft |
| Front/back roof slope | 10/12 |
| Left/right roof slope | 12/12 |