Description
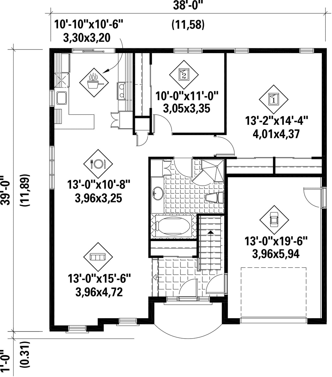
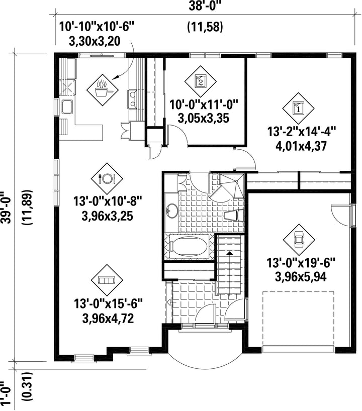
The roof gables, the French corners and the architectural details enhance this bungalow's appearance. The house is 38 feet wide by 39 feet deep and provides 1,147 square feet of living space. There is also a 277 square foot one-car garage with access to the front entrance.
The house includes a kitchen, an open living and dining room, two bedrooms and a bathroom.
The house includes a kitchen, an open living and dining room, two bedrooms and a bathroom.
Additional info
Measurements: Imperial| House style | European |
Construction price
Approximate amount equivalent to what it would cost to have a general contractor (Montreal's South Shore region) build a similar home, excluding the lot and the infrastructure.
|
299257 $ |
|---|---|---|---|
| Front | 38 ft | Total living surface | 1147 ft² |
| Depth | 39 ft | Bathrooms | 1 |
| Height | 23 ft 9 in | Bedrooms | 2 |
| Master bedroom | N / A | ||
| First floor area | 1147 ft² | Exterior walls | Aluminum + Brick |
| Kitchen | U-shaped + Dining room | ||
| Garage area | 277 ft² | Garages | 1 |
| Garage wall | 8 ft | First floor wall | 8 ft |
| Front/back roof slope | 8/12 | ||
| Left/right roof slope | 12/12 |
| House style | European |
|---|---|
|
Construction price
Approximate amount equivalent to what it would cost to have a general contractor (Montreal's South Shore region) build a similar home, excluding the lot and the infrastructure.
|
299257 $ |
| Front | 38 ft |
| Total living surface | 1147 ft² |
| Depth | 39 ft |
| Bathrooms | 1 |
| Height | 23 ft 9 in |
| Bedrooms | 2 |
| Master bedroom | N / A |
| First floor area | 1147 ft² |
| Exterior walls | Aluminum + Brick |
| Kitchen | U-shaped + Dining room |
| Garage area | 277 ft² |
| Garages | 1 |
| Garage wall | 8 ft |
| First floor wall | 8 ft |
| Front/back roof slope | 8/12 |
| Left/right roof slope | 12/12 |