Description
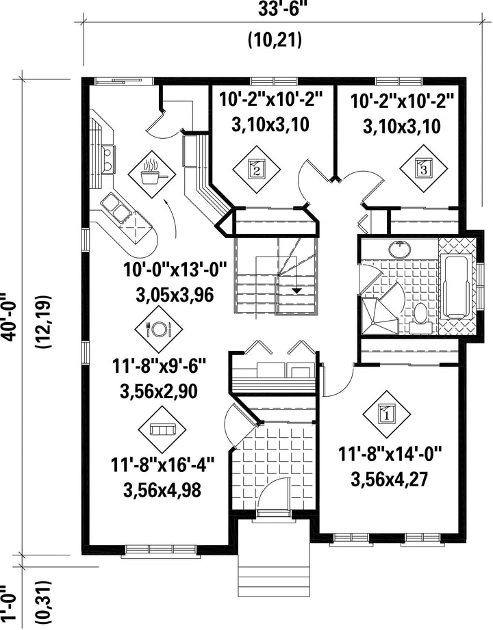
This lovely bungalow has a brick facade, decorative moldings and French corners. The house is 33 feet 6 inches wide by 40 feet deep and provides 1,263 of living space.
The home includes a closed entrance hall, an open living and dining room, a kitchen with a lunch counter, a bathroom, a laundry area and three bedrooms.
The home includes a closed entrance hall, an open living and dining room, a kitchen with a lunch counter, a bathroom, a laundry area and three bedrooms.
Additional info
Measurements: Imperial| House style | Classic |
Construction price
Approximate amount equivalent to what it would cost to have a general contractor (Montreal's South Shore region) build a similar home, excluding the lot and the infrastructure.
|
300495 $ |
|---|---|---|---|
| Front | 33 ft 6 in | Total living surface | 1263 ft² |
| Depth | 40 ft | Bathrooms | 1 |
| Height | 25 ft 8 in | Bedrooms | 3 |
| Master bedroom | N / A | ||
| First floor area | 1263 ft² | Exterior walls | Aluminum + Brick |
| Kitchen | Meal counter + Dining room | ||
| Garages | 0 | ||
| First floor wall | 8 ft | ||
| Front/back roof slope | 8/12 | ||
| Left/right roof slope | 12/12 |
| House style | Classic |
|---|---|
|
Construction price
Approximate amount equivalent to what it would cost to have a general contractor (Montreal's South Shore region) build a similar home, excluding the lot and the infrastructure.
|
300495 $ |
| Front | 33 ft 6 in |
| Total living surface | 1263 ft² |
| Depth | 40 ft |
| Bathrooms | 1 |
| Height | 25 ft 8 in |
| Bedrooms | 3 |
| Master bedroom | N / A |
| First floor area | 1263 ft² |
| Exterior walls | Aluminum + Brick |
| Kitchen | Meal counter + Dining room |
| Garages | 0 |
| First floor wall | 8 ft |
| Front/back roof slope | 8/12 |
| Left/right roof slope | 12/12 |