Description
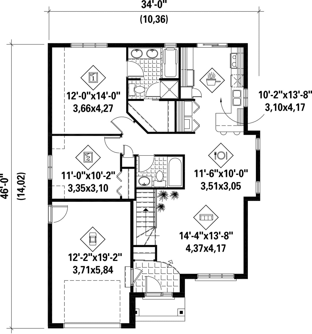
This bungalow will catch the eye with its lovely front porch, its gables and large transom window. The house is 34 feet wide by 46 feet deep and provides 1,100 square feet of living space in addition to a 274 square foot one-car garage.
The home features nine-foot ceilings. It has a living room, a dining room, a kitchen with a laundry area, a family bathroom, two bedrooms with slanted ceilings including a master bedroom with a large walk-in closet and a private bathroom.
The home features nine-foot ceilings. It has a living room, a dining room, a kitchen with a laundry area, a family bathroom, two bedrooms with slanted ceilings including a master bedroom with a large walk-in closet and a private bathroom.
Additional info
Measurements: Imperial| House style | Rustic |
Construction price
Approximate amount equivalent to what it would cost to have a general contractor (Montreal's South Shore region) build a similar home, excluding the lot and the infrastructure.
|
297908 $ |
|---|---|---|---|
| Front | 34 ft | Total living surface | 1100 ft² |
| Depth | 46 ft | Bathrooms | 2 |
| Height | 28 ft | Bedrooms | 2 |
| Master bedroom | Pedestal bath + Shower + Double sink + Wardrobe + Toilet | Master bedroom - comments | --- |
| First floor area | 1100 ft² | Exterior walls | Aluminum + Brick + Stone |
| Kitchen | Lunch counter + Laboratory + Dining room | ||
| Garage area | 274 ft² | Garages | 1 |
| Garage wall | 8 ft | First floor wall | 9 ft |
| Front/back roof slope | 12/12 | ||
| Left/right roof slope | 12/12 |
| House style | Rustic |
|---|---|
|
Construction price
Approximate amount equivalent to what it would cost to have a general contractor (Montreal's South Shore region) build a similar home, excluding the lot and the infrastructure.
|
297908 $ |
| Front | 34 ft |
| Total living surface | 1100 ft² |
| Depth | 46 ft |
| Bathrooms | 2 |
| Height | 28 ft |
| Bedrooms | 2 |
| Master bedroom | Pedestal bath + Shower + Double sink + Wardrobe + Toilet |
| Master bedroom - comments | --- |
| First floor area | 1100 ft² |
| Exterior walls | Aluminum + Brick + Stone |
| Kitchen | Lunch counter + Laboratory + Dining room |
| Garage area | 274 ft² |
| Garages | 1 |
| Garage wall | 8 ft |
| First floor wall | 9 ft |
| Front/back roof slope | 12/12 |
| Left/right roof slope | 12/12 |