Description
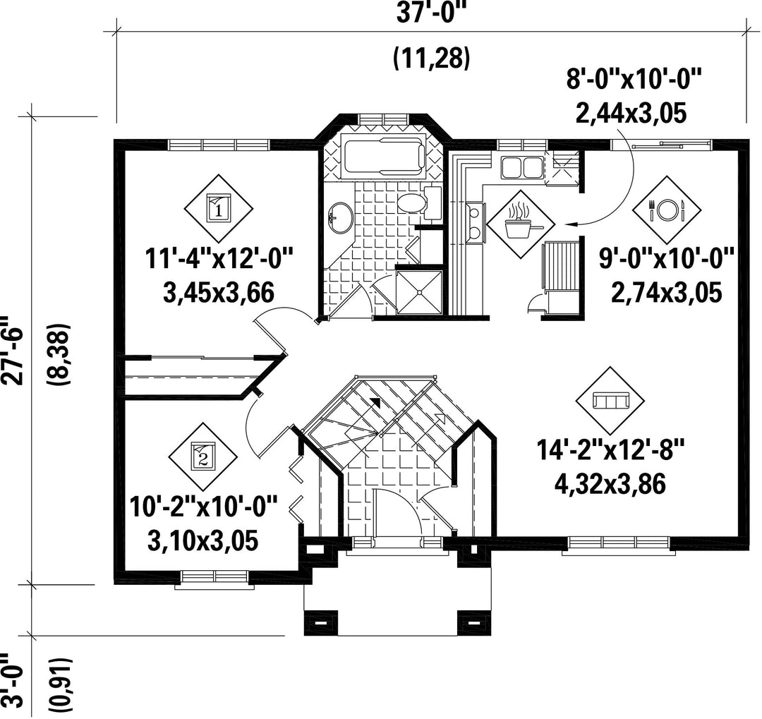
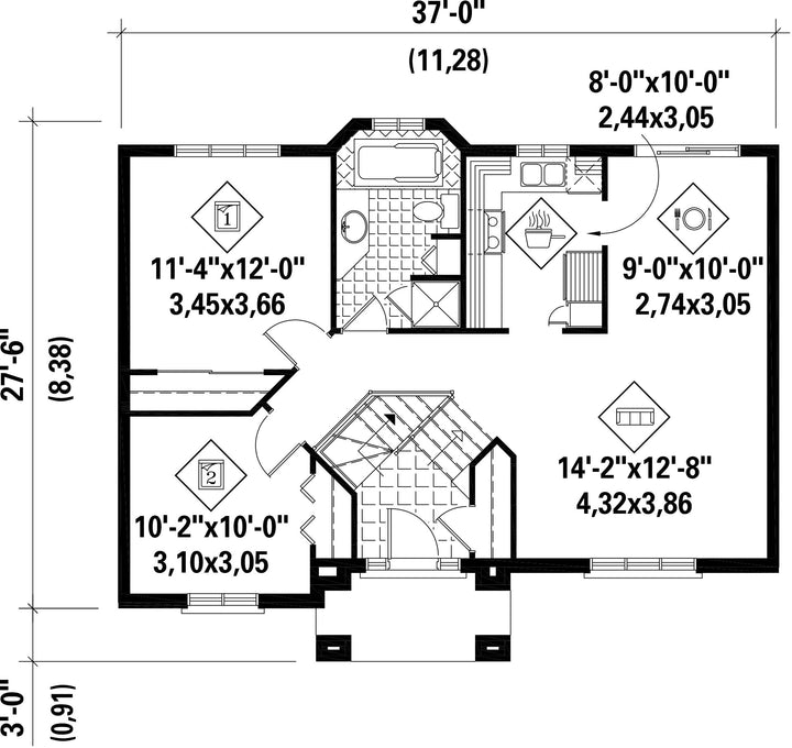
This elegant brick bungalow stands out with decorative moldings and an imposing front porch. The house is 37 feet wide by 26 feet deep and provides 921 square feet of living space.
The home includes a kitchen, an open living and dining area, a bathroom and two bedrooms.
The home includes a kitchen, an open living and dining area, a bathroom and two bedrooms.
Additional info
Measurements: Imperial| House style | Classic |
Construction price
Approximate amount equivalent to what it would cost to have a general contractor (Montreal's South Shore region) build a similar home, excluding the lot and the infrastructure.
|
227050 $ |
|---|---|---|---|
| Front | 37 ft | Total living surface | 921 ft² |
| Depth | 26 ft | Bathrooms | 1 |
| Height | 26 ft 6 in | Bedrooms | 2 |
| Master bedroom | N / A | ||
| First floor area | 921 ft² | Exterior walls | Aluminum + Brick |
| Kitchen | U-shaped + Dining room | ||
| Garages | 0 | ||
| First floor wall | 8 ft | ||
| Front/back roof slope | 12/12 | ||
| Left/right roof slope | 12/12 |
| House style | Classic |
|---|---|
|
Construction price
Approximate amount equivalent to what it would cost to have a general contractor (Montreal's South Shore region) build a similar home, excluding the lot and the infrastructure.
|
227050 $ |
| Front | 37 ft |
| Total living surface | 921 ft² |
| Depth | 26 ft |
| Bathrooms | 1 |
| Height | 26 ft 6 in |
| Bedrooms | 2 |
| Master bedroom | N / A |
| First floor area | 921 ft² |
| Exterior walls | Aluminum + Brick |
| Kitchen | U-shaped + Dining room |
| Garages | 0 |
| First floor wall | 8 ft |
| Front/back roof slope | 12/12 |
| Left/right roof slope | 12/12 |