Description
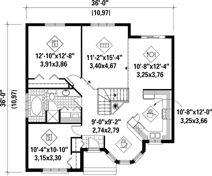
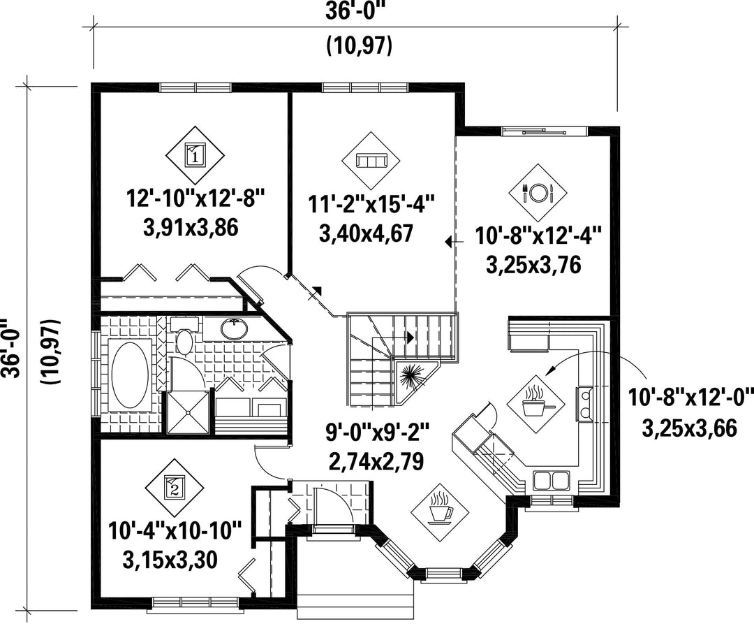
This stone and aluminum bungalow stands out with its small turret, decorative shutters and ornamental moldings. The house is 36 feet wide by 36 feet deep and provides 1,162 square feet of living space.
The home includes a kitchen with a breakfast nook located in the turret, an open living and dining area, a large bathroom and two bedrooms.
The home includes a kitchen with a breakfast nook located in the turret, an open living and dining area, a large bathroom and two bedrooms.
Additional info
Measurements: Imperial| House style | European |
Construction price
Approximate amount equivalent to what it would cost to have a general contractor (Montreal's South Shore region) build a similar home, excluding the lot and the infrastructure.
|
281756 $ |
|---|---|---|---|
| Front | 36 ft | Total living surface | 1162 ft² |
| Depth | 36 ft | Bathrooms | 1 |
| Height | 25 ft | Bedrooms | 2 |
| Master bedroom | N / A | ||
| First floor area | 1162 ft² | Exterior walls | Aggregates + Stone |
| Kitchen | Dining area + Meal counter | ||
| Garages | 0 | ||
| First floor wall | 8 ft | ||
| Front/back roof slope | 12/12 | ||
| Left/right roof slope | 12/12 |
| House style | European |
|---|---|
|
Construction price
Approximate amount equivalent to what it would cost to have a general contractor (Montreal's South Shore region) build a similar home, excluding the lot and the infrastructure.
|
281756 $ |
| Front | 36 ft |
| Total living surface | 1162 ft² |
| Depth | 36 ft |
| Bathrooms | 1 |
| Height | 25 ft |
| Bedrooms | 2 |
| Master bedroom | N / A |
| First floor area | 1162 ft² |
| Exterior walls | Aggregates + Stone |
| Kitchen | Dining area + Meal counter |
| Garages | 0 |
| First floor wall | 8 ft |
| Front/back roof slope | 12/12 |
| Left/right roof slope | 12/12 |