Description
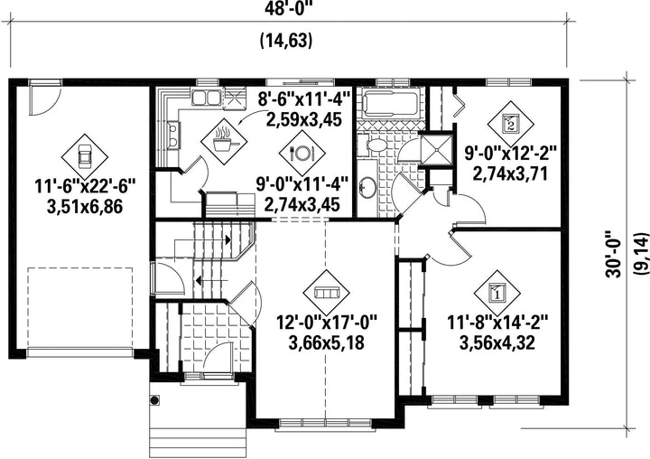
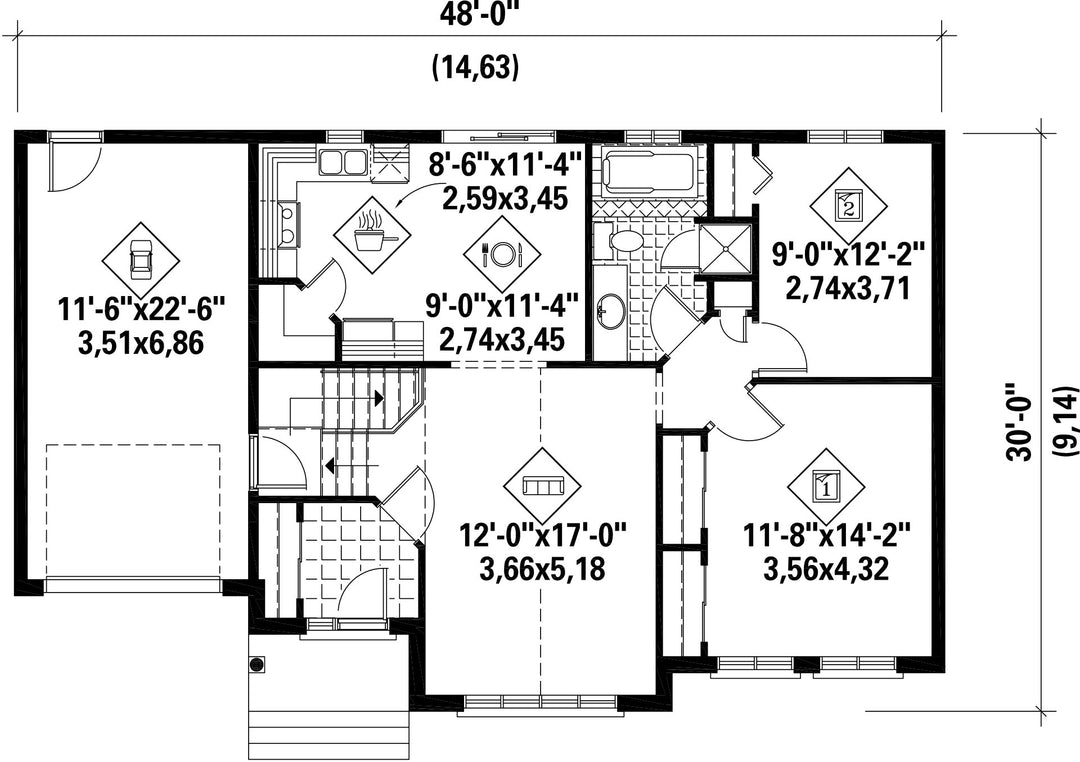
This bungalow stands out with its vertical brick, architectural details, decorative pillars and French corners. It measures 48 feet wide by 30 feet deep and provides 1,019 square feet of living space.
The house has a closed entrance hall, a living room with cathedral ceiling, a dining room, a U-shaped kitchen, a bathroom, and two bedrooms including a master bedroom with two large closets. The 288 square foot one-car garage has two doors – one that provides access to the house and the other to the backyard.
The house has a closed entrance hall, a living room with cathedral ceiling, a dining room, a U-shaped kitchen, a bathroom, and two bedrooms including a master bedroom with two large closets. The 288 square foot one-car garage has two doors – one that provides access to the house and the other to the backyard.
Additional info
Measurements: Imperial| House style | European |
Construction price
Approximate amount equivalent to what it would cost to have a general contractor (Montreal's South Shore region) build a similar home, excluding the lot and the infrastructure.
|
271423 $ |
|---|---|---|---|
| Front | 48 ft | Total living surface | 1019 ft² |
| Depth | 30 ft | Bathrooms | 1 |
| Height | 24 ft 6 in | Bedrooms | 2 |
| Master bedroom | N / A | ||
| First floor area | 1019 ft² | Exterior walls | Aluminum + Brick |
| Kitchen | U-shaped + Dining room | ||
| Garage area | 288 ft² | Garages | 1 |
| Garage wall | 8 ft | First floor wall | 8 ft |
| Front/back roof slope | 10/12 | ||
| Left/right roof slope | 10/12 |
| House style | European |
|---|---|
|
Construction price
Approximate amount equivalent to what it would cost to have a general contractor (Montreal's South Shore region) build a similar home, excluding the lot and the infrastructure.
|
271423 $ |
| Front | 48 ft |
| Total living surface | 1019 ft² |
| Depth | 30 ft |
| Bathrooms | 1 |
| Height | 24 ft 6 in |
| Bedrooms | 2 |
| Master bedroom | N / A |
| First floor area | 1019 ft² |
| Exterior walls | Aluminum + Brick |
| Kitchen | U-shaped + Dining room |
| Garage area | 288 ft² |
| Garages | 1 |
| Garage wall | 8 ft |
| First floor wall | 8 ft |
| Front/back roof slope | 10/12 |
| Left/right roof slope | 10/12 |