Description
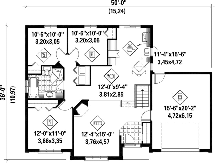
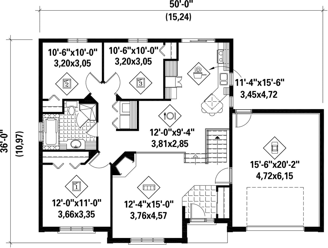
This bungalow features a brick facade, roof gables and French corners. The house is 50 feet wide by 36 feet deep and provides 1,172 square feet of living space in addition to a 346 square foot one-car garage.
The house includes a closed entrance hall, a sunny living room with a corner fireplace, a functional kitchen with a lunch counter, an open dining room, a large laundry area, a family bathroom and three bedrooms.
The house includes a closed entrance hall, a sunny living room with a corner fireplace, a functional kitchen with a lunch counter, an open dining room, a large laundry area, a family bathroom and three bedrooms.
Additional info
Measurements: Imperial| House style | European |
Construction price
Approximate amount equivalent to what it would cost to have a general contractor (Montreal's South Shore region) build a similar home, excluding the lot and the infrastructure.
|
315668 $ |
|---|---|---|---|
| Front | 50 ft | Total living surface | 1172 ft² |
| Depth | 36 ft | Bathrooms | 1 |
| Height | 25 ft 3 in | Bedrooms | 3 |
| Master bedroom | N / A | ||
| First floor area | 1172 ft² | Exterior walls | Aggregates + Aluminum + Brick |
| Kitchen | Lunch counter + Laboratory + Dining room | ||
| Garage area | 346 ft² | Garages | 1 |
| Garage wall | 8 ft | First floor wall | 8 ft |
| Front/back roof slope | 8/12 | ||
| Left/right roof slope | 12/12 |
| House style | European |
|---|---|
|
Construction price
Approximate amount equivalent to what it would cost to have a general contractor (Montreal's South Shore region) build a similar home, excluding the lot and the infrastructure.
|
315668 $ |
| Front | 50 ft |
| Total living surface | 1172 ft² |
| Depth | 36 ft |
| Bathrooms | 1 |
| Height | 25 ft 3 in |
| Bedrooms | 3 |
| Master bedroom | N / A |
| First floor area | 1172 ft² |
| Exterior walls | Aggregates + Aluminum + Brick |
| Kitchen | Lunch counter + Laboratory + Dining room |
| Garage area | 346 ft² |
| Garages | 1 |
| Garage wall | 8 ft |
| First floor wall | 8 ft |
| Front/back roof slope | 8/12 |
| Left/right roof slope | 12/12 |