Description
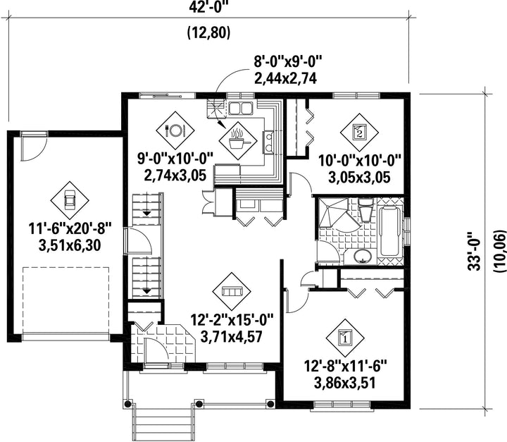
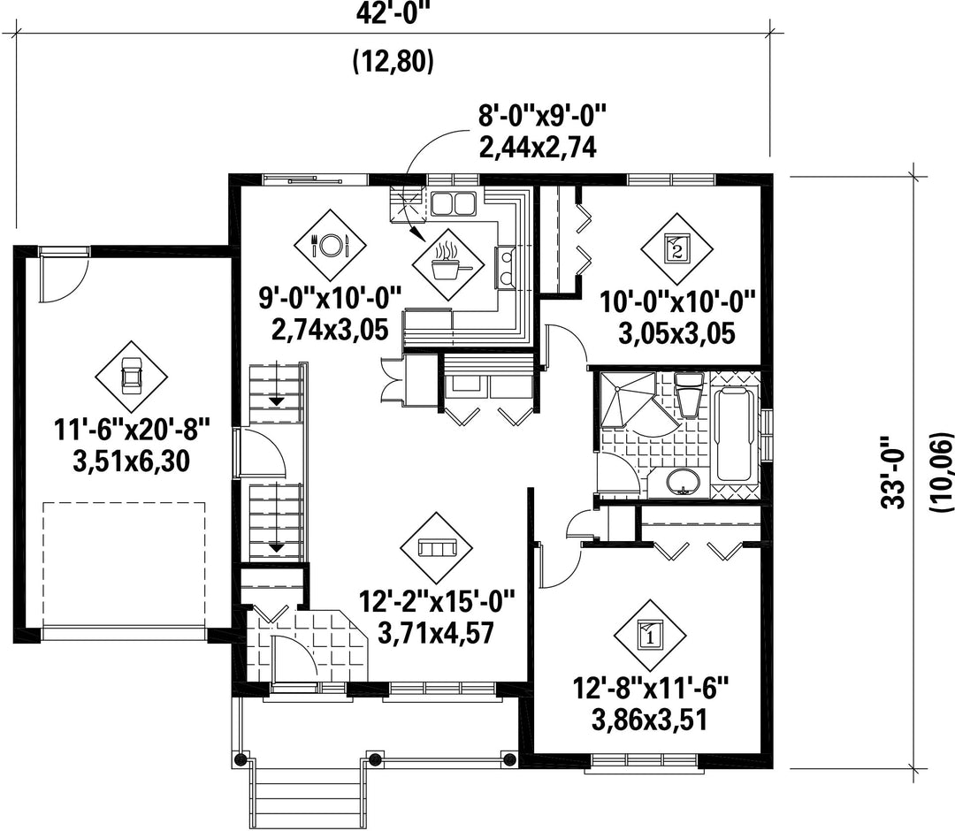
This bungalow presents some interesting features such as a brick facing, a porch adorned with decorative pillars and a large front window with shutters and a keystone. The house is 42 feet wide by 33 feet deep and provides 926 square feet of living space.
The home includes a living room, a kitchen, a dining room, two bedrooms, a bathroom as well as a 264 square foot one-car garage.
The home includes a living room, a kitchen, a dining room, two bedrooms, a bathroom as well as a 264 square foot one-car garage.
Additional info
Measurements: Imperial| House style | Country |
Construction price
Approximate amount equivalent to what it would cost to have a general contractor (Montreal's South Shore region) build a similar home, excluding the lot and the infrastructure.
|
248700 $ |
|---|---|---|---|
| Front | 42 ft | Total living surface | 926 ft² |
| Depth | 33 ft | Bathrooms | 1 |
| Height | 23 ft 1 in | Bedrooms | 2 |
| First floor area | 926 ft² | Exterior walls | Aluminum + Brick |
| Kitchen | U shaped + Dining room | ||
| Garage area | 264 ft² | Garages | 1 |
| Garage wall | 8 ft | First floor wall | 8 ft |
| Front/back roof slope | 7/12 | ||
| Left/right roof slope | 12/12 |
| House style | Country |
|---|---|
|
Construction price
Approximate amount equivalent to what it would cost to have a general contractor (Montreal's South Shore region) build a similar home, excluding the lot and the infrastructure.
|
248700 $ |
| Front | 42 ft |
| Total living surface | 926 ft² |
| Depth | 33 ft |
| Bathrooms | 1 |
| Height | 23 ft 1 in |
| Bedrooms | 2 |
| First floor area | 926 ft² |
| Exterior walls | Aluminum + Brick |
| Kitchen | U shaped + Dining room |
| Garage area | 264 ft² |
| Garages | 1 |
| Garage wall | 8 ft |
| First floor wall | 8 ft |
| Front/back roof slope | 7/12 |
| Left/right roof slope | 12/12 |