Description
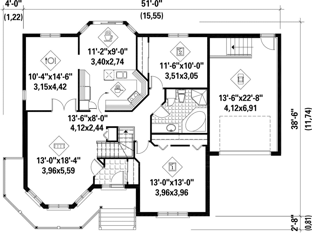
With its pretty veranda and spacious rooms, this elegant bungalow is most appealing. The house is 51 feet wide by 38 feet deep and has a living area of 1273 square feet.
It includes two bedrooms, a bathroom, a kitchen with breakfast nook, a dining room, a living room, as well as a one-car garage.
It includes two bedrooms, a bathroom, a kitchen with breakfast nook, a dining room, a living room, as well as a one-car garage.
Additional info
Measurements: Imperial| House style | Victorian |
Construction price
Approximate amount equivalent to what it would cost to have a general contractor (Montreal's South Shore region) build a similar home, excluding the lot and the infrastructure.
|
353325 $ |
|---|---|---|---|
| Front | 51 ft | Total living surface | 1273 ft² |
| Depth | 38 ft 6 in | Bathrooms | 1 |
| Height | 28 ft 3 in | Bedrooms | 2 |
| Master bedroom | N / A | ||
| First floor area | 1273 ft² | Exterior walls | Aggregates + Brick |
| Kitchen | Dining area + Dining room | ||
| Garage area | 336 ft² | Garages | 1 |
| Garage wall | 8 ft | First floor wall | 8 ft |
| Front/back roof slope | 10/12 | ||
| Left/right roof slope | 14/12 |
| House style | Victorian |
|---|---|
|
Construction price
Approximate amount equivalent to what it would cost to have a general contractor (Montreal's South Shore region) build a similar home, excluding the lot and the infrastructure.
|
353325 $ |
| Front | 51 ft |
| Total living surface | 1273 ft² |
| Depth | 38 ft 6 in |
| Bathrooms | 1 |
| Height | 28 ft 3 in |
| Bedrooms | 2 |
| Master bedroom | N / A |
| First floor area | 1273 ft² |
| Exterior walls | Aggregates + Brick |
| Kitchen | Dining area + Dining room |
| Garage area | 336 ft² |
| Garages | 1 |
| Garage wall | 8 ft |
| First floor wall | 8 ft |
| Front/back roof slope | 10/12 |
| Left/right roof slope | 14/12 |