Description
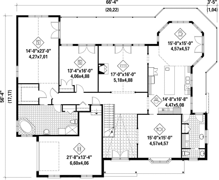
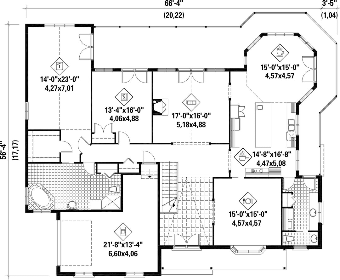
Some houses look more discreet than others. With a living area of 2,515 square feet, this pretty bungalow seems to blend right in the scenery. The path leading to the house is covered with paving blocks and is unassuming. However, the back of the home differs quite drastically from this simplicity. The long veranda stretching around the back of the house gives it a daring, almost exotic look.
With its large glass doors overlooking the veranda and its fireplace, the living room is particularly inviting. The house includes two bedrooms, one of which is a main bedroom with a walk-in closet and a door leading out to the veranda, a bathroom, a kitchen with an island, a breakfast nook, a dining room, a powder room and a 401 square feet one-car garage.
With its large glass doors overlooking the veranda and its fireplace, the living room is particularly inviting. The house includes two bedrooms, one of which is a main bedroom with a walk-in closet and a door leading out to the veranda, a bathroom, a kitchen with an island, a breakfast nook, a dining room, a powder room and a 401 square feet one-car garage.
Additional info
Measurements: Imperial| House style | Country |
Construction price
Approximate amount equivalent to what it would cost to have a general contractor (Montreal's South Shore region) build a similar home, excluding the lot and the infrastructure.
|
695747 $ |
|---|---|---|---|
| Front | 66 ft 4 in | Total living surface | 2515 ft² |
| Depth | 56 ft 4 in | Bathrooms | 1 |
| Height | 32 ft 8 in | Bedrooms | 2 |
| Master bedroom | Walk in | ||
| First floor area | 2515 ft² | Exterior walls | Aluminum + Cedar + Stone |
| Kitchen | Nook + U shaped + Dining room + Island | ||
| Garage area | 401 ft² | Garages | 1 |
| Garage wall | 8 ft | First floor wall | 9 ft |
| Front/back roof slope | 12/12 | ||
| Left/right roof slope | 12/12 |
| House style | Country |
|---|---|
|
Construction price
Approximate amount equivalent to what it would cost to have a general contractor (Montreal's South Shore region) build a similar home, excluding the lot and the infrastructure.
|
695747 $ |
| Front | 66 ft 4 in |
| Total living surface | 2515 ft² |
| Depth | 56 ft 4 in |
| Bathrooms | 1 |
| Height | 32 ft 8 in |
| Bedrooms | 2 |
| Master bedroom | Walk in |
| First floor area | 2515 ft² |
| Exterior walls | Aluminum + Cedar + Stone |
| Kitchen | Nook + U shaped + Dining room + Island |
| Garage area | 401 ft² |
| Garages | 1 |
| Garage wall | 8 ft |
| First floor wall | 9 ft |
| Front/back roof slope | 12/12 |
| Left/right roof slope | 12/12 |