Description
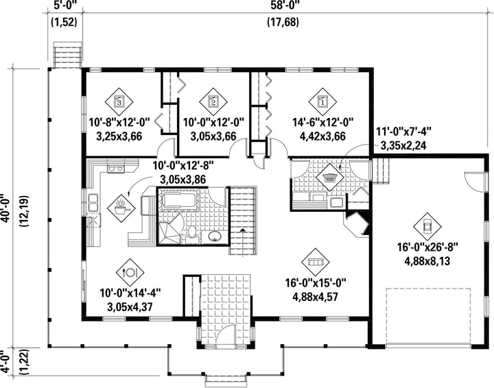
This wonderful bungalow stands out with its large veranda. The house is 58 feet wide by 40 feet deep and provides 1,526 square feet of living space in addition to a 459 square foot one-car garage.
The home consists of a dining room, a kitchen, a living room with a corner fireplace, a bathroom, a laundry room, and three bedrooms including a master bedroom with two walk-in closets.
The home consists of a dining room, a kitchen, a living room with a corner fireplace, a bathroom, a laundry room, and three bedrooms including a master bedroom with two walk-in closets.
Additional info
Measurements: Imperial| House style | Classic |
Construction price
Approximate amount equivalent to what it would cost to have a general contractor (Montreal's South Shore region) build a similar home, excluding the lot and the infrastructure.
|
415648 $ |
|---|---|---|---|
| Front | 58 ft | Total living surface | 1526 ft² |
| Depth | 40 ft | Bathrooms | 1 |
| Height | 23 ft | Bedrooms | 3 |
| Master bedroom | N / A | ||
| First floor area | 1526 ft² | Exterior walls | Aluminum |
| Kitchen | Dining room | ||
| Garage area | 459 ft² | Garages | 1 |
| Garage wall | 8 ft | First floor wall | 8 ft |
| Front/back roof slope | 7/12 | ||
| House style | Classic |
|---|---|
|
Construction price
Approximate amount equivalent to what it would cost to have a general contractor (Montreal's South Shore region) build a similar home, excluding the lot and the infrastructure.
|
415648 $ |
| Front | 58 ft |
| Total living surface | 1526 ft² |
| Depth | 40 ft |
| Bathrooms | 1 |
| Height | 23 ft |
| Bedrooms | 3 |
| Master bedroom | N / A |
| First floor area | 1526 ft² |
| Exterior walls | Aluminum |
| Kitchen | Dining room |
| Garage area | 459 ft² |
| Garages | 1 |
| Garage wall | 8 ft |
| First floor wall | 8 ft |
| Front/back roof slope | 7/12 |