Description
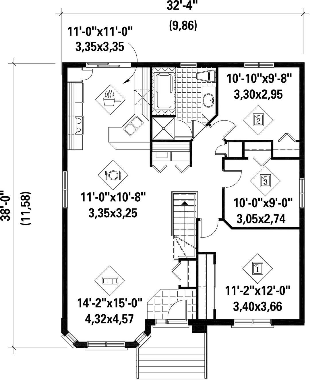
In addition to hung windows, decorative shutters and architectural details, this lovely bungalow has a bow window in the living room. The house is 32 feet 4 inches wide by 38 feet deep and provides 1,153 square feet of living space.
The home includes a kitchen, an open living and dining area, a bathroom and three bedrooms.
The home includes a kitchen, an open living and dining area, a bathroom and three bedrooms.
Additional info
Measurements: Imperial| House style | Classical |
Construction price
Approximate amount equivalent to what it would cost to have a general contractor (Montreal's South Shore region) build a similar home, excluding the lot and the infrastructure.
|
275370 $ |
|---|---|---|---|
| Front | 32 ft 4 in | Total living surface | 1153 ft² |
| Depth | 38 ft | Bathrooms | 1 |
| Height | 22 ft 3 in | Bedrooms | 3 |
| First floor area | 1153 ft² | Exterior walls | Aluminum + Stone |
| Kitchen | Snack + U shaped + Dining room | ||
| Garages | 0 | ||
| First floor wall | 8 ft | ||
| Front/back roof slope | 6/12 | ||
| Left/right roof slope | 12/12 |
| House style | Classical |
|---|---|
|
Construction price
Approximate amount equivalent to what it would cost to have a general contractor (Montreal's South Shore region) build a similar home, excluding the lot and the infrastructure.
|
275370 $ |
| Front | 32 ft 4 in |
| Total living surface | 1153 ft² |
| Depth | 38 ft |
| Bathrooms | 1 |
| Height | 22 ft 3 in |
| Bedrooms | 3 |
| First floor area | 1153 ft² |
| Exterior walls | Aluminum + Stone |
| Kitchen | Snack + U shaped + Dining room |
| Garages | 0 |
| First floor wall | 8 ft |
| Front/back roof slope | 6/12 |
| Left/right roof slope | 12/12 |