Description
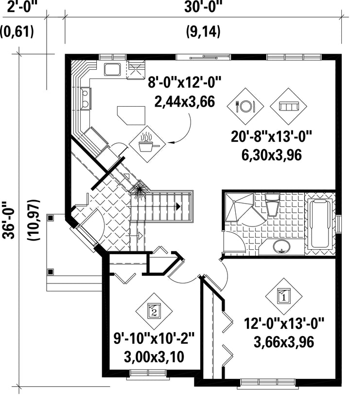
This lovely brick bungalow will delight anyone with its decorative shutters, dormer window and recessed entrance. The house is 30 feet wide by 36 feet deep and provides 1,006 square feet of living space.
The home includes a kitchen with an island, an open living and dining area, a bathroom and two bedrooms.
The home includes a kitchen with an island, an open living and dining area, a bathroom and two bedrooms.
Additional info
Measurements: Imperial| House style | Rustic |
Construction price
Approximate amount equivalent to what it would cost to have a general contractor (Montreal's South Shore region) build a similar home, excluding the lot and the infrastructure.
|
238594 $ |
|---|---|---|---|
| Front | 30 ft | Total living surface | 1006 ft² |
| Depth | 36 ft | Bathrooms | 1 |
| Height | 25 ft 3 in | Bedrooms | 2 |
| Master bedroom | N / A | ||
| First floor area | 1006 ft² | Exterior walls | Aluminum + Brick |
| Kitchen | Dining room + Island | ||
| Garages | 0 | ||
| First floor wall | 8 ft | ||
| Front/back roof slope | 8/12 | ||
| House style | Rustic |
|---|---|
|
Construction price
Approximate amount equivalent to what it would cost to have a general contractor (Montreal's South Shore region) build a similar home, excluding the lot and the infrastructure.
|
238594 $ |
| Front | 30 ft |
| Total living surface | 1006 ft² |
| Depth | 36 ft |
| Bathrooms | 1 |
| Height | 25 ft 3 in |
| Bedrooms | 2 |
| Master bedroom | N / A |
| First floor area | 1006 ft² |
| Exterior walls | Aluminum + Brick |
| Kitchen | Dining room + Island |
| Garages | 0 |
| First floor wall | 8 ft |
| Front/back roof slope | 8/12 |