Description
NULL
Additional info
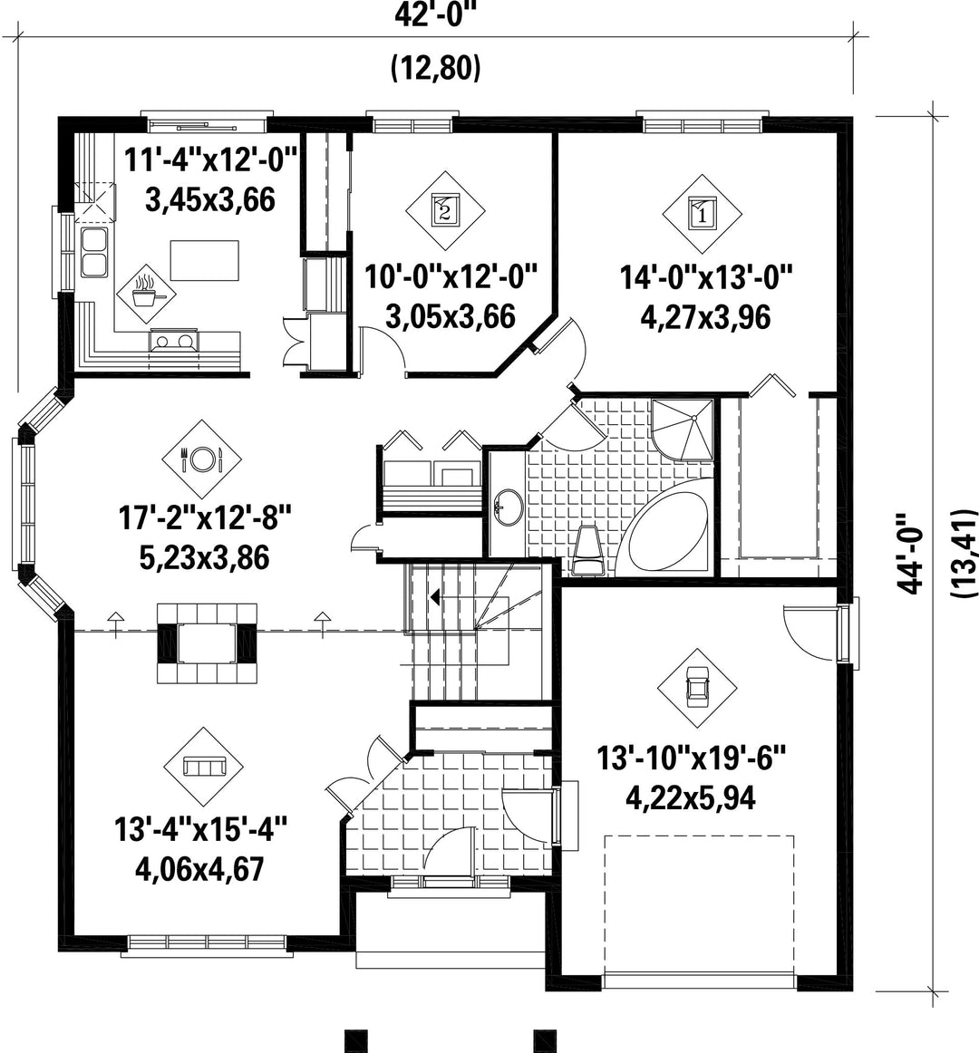
Measurements: Imperial| House style | European |
Construction price
Approximate amount equivalent to what it would cost to have a general contractor (Montreal's South Shore region) build a similar home, excluding the lot and the infrastructure.
|
393361 $ |
|---|---|---|---|
| Front | 42 ft | Total living surface | 1399 ft² |
| Depth | 44 ft | Bathrooms | 1 |
| Height | 21 ft 7 in | Bedrooms | 2 |
| Master bedroom | Wardrobe | Master bedroom - comments | --- |
| First floor area | 1399 ft² | Exterior walls | Aggregates + Brick |
| Kitchen | U-shaped + Dining room + Island | ||
| Garage area | 302 ft² | Garages | 1 |
| Garage wall | 8 ft | First floor wall | 8 ft |
| Front/back roof slope | 6/12 | ||
| Left/right roof slope | 8/12 |
| House style | European |
|---|---|
|
Construction price
Approximate amount equivalent to what it would cost to have a general contractor (Montreal's South Shore region) build a similar home, excluding the lot and the infrastructure.
|
393361 $ |
| Front | 42 ft |
| Total living surface | 1399 ft² |
| Depth | 44 ft |
| Bathrooms | 1 |
| Height | 21 ft 7 in |
| Bedrooms | 2 |
| Master bedroom | Wardrobe |
| Master bedroom - comments | --- |
| First floor area | 1399 ft² |
| Exterior walls | Aggregates + Brick |
| Kitchen | U-shaped + Dining room + Island |
| Garage area | 302 ft² |
| Garages | 1 |
| Garage wall | 8 ft |
| First floor wall | 8 ft |
| Front/back roof slope | 6/12 |
| Left/right roof slope | 8/12 |