Description
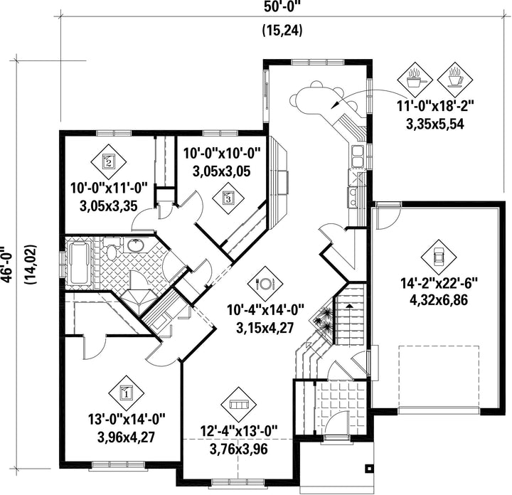
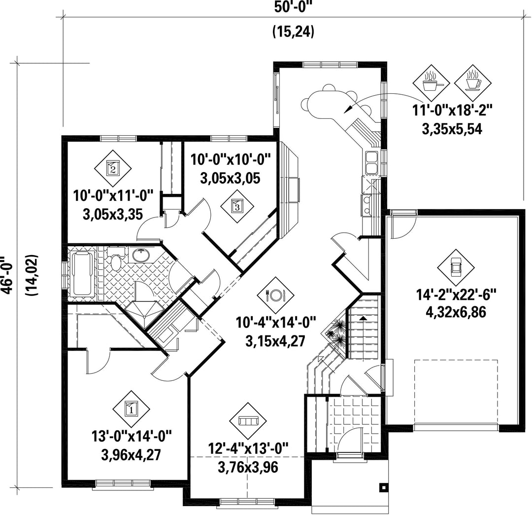
This elegant bungalow features a brick and stone facade. The house is 50 feet wide by 46 feet deep and provides 1,431 square feet of living space in addition to a 360 square foot one-car garage.
The home consists of an open living room with a cathedral ceiling and a dining room, a kitchen with a lunch counter, a laundry room, a bathroom, and three bedrooms including a master bedroom with a large walk-in closet.
The home consists of an open living room with a cathedral ceiling and a dining room, a kitchen with a lunch counter, a laundry room, a bathroom, and three bedrooms including a master bedroom with a large walk-in closet.
Additional info
Measurements: Imperial| House style | Classic |
Construction price
Approximate amount equivalent to what it would cost to have a general contractor (Montreal's South Shore region) build a similar home, excluding the lot and the infrastructure.
|
377612 $ |
|---|---|---|---|
| Front | 50 ft | Total living surface | 1431 ft² |
| Depth | 46 ft | Bathrooms | 1 |
| Height | 24 ft 10 in | Bedrooms | 3 |
| Master bedroom | Wardrobe | Master bedroom - comments | --- |
| First floor area | 1431 ft² | Exterior walls | Aluminum + Brick + Stone |
| Kitchen | Meal counter + Dining room | ||
| Garage area | 360 ft² | Garages | 1 |
| Garage wall | 8 ft | First floor wall | 8 ft |
| Front/back roof slope | 8/12 | ||
| Left/right roof slope | 9/12 |
| House style | Classic |
|---|---|
|
Construction price
Approximate amount equivalent to what it would cost to have a general contractor (Montreal's South Shore region) build a similar home, excluding the lot and the infrastructure.
|
377612 $ |
| Front | 50 ft |
| Total living surface | 1431 ft² |
| Depth | 46 ft |
| Bathrooms | 1 |
| Height | 24 ft 10 in |
| Bedrooms | 3 |
| Master bedroom | Wardrobe |
| Master bedroom - comments | --- |
| First floor area | 1431 ft² |
| Exterior walls | Aluminum + Brick + Stone |
| Kitchen | Meal counter + Dining room |
| Garage area | 360 ft² |
| Garages | 1 |
| Garage wall | 8 ft |
| First floor wall | 8 ft |
| Front/back roof slope | 8/12 |
| Left/right roof slope | 9/12 |