Description
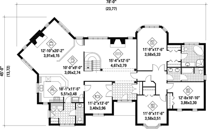
This modern bungalow is 78 feet wide by 45 feet deep and has a 2,444 square feet living area.
The large home includes three bedrooms, a powder room, two bathrooms, a laundry room, a living room with a fireplace, a kitchen, a breakfast nook, a dining room and a family room with a second fireplace.
The large home includes three bedrooms, a powder room, two bathrooms, a laundry room, a living room with a fireplace, a kitchen, a breakfast nook, a dining room and a family room with a second fireplace.
Additional info
Measurements: Imperial| House style | European |
Construction price
Approximate amount equivalent to what it would cost to have a general contractor (Montreal's South Shore region) build a similar home, excluding the lot and the infrastructure.
|
647646 $ |
|---|---|---|---|
| Front | 78 ft | Total living surface | 2444 ft² |
| Depth | 45 ft | Bathrooms | 2 |
| Height | 26 ft 10 in | Bedrooms | 3 |
| Master bedroom | Pedestal bath + Shower + Single sink + Double doors + Toilet | ||
| First floor area | 2444 ft² | Exterior walls | Brick + Stone |
| Kitchen | Dining area + Breakfast bar + U-shape + Dining room | ||
| Garages | 0 | ||
| First floor wall | 8 ft | ||
| Front/back roof slope | 12/12 | ||
| Left/right roof slope | 12/12 |
| House style | European |
|---|---|
|
Construction price
Approximate amount equivalent to what it would cost to have a general contractor (Montreal's South Shore region) build a similar home, excluding the lot and the infrastructure.
|
647646 $ |
| Front | 78 ft |
| Total living surface | 2444 ft² |
| Depth | 45 ft |
| Bathrooms | 2 |
| Height | 26 ft 10 in |
| Bedrooms | 3 |
| Master bedroom | Pedestal bath + Shower + Single sink + Double doors + Toilet |
| First floor area | 2444 ft² |
| Exterior walls | Brick + Stone |
| Kitchen | Dining area + Breakfast bar + U-shape + Dining room |
| Garages | 0 |
| First floor wall | 8 ft |
| Front/back roof slope | 12/12 |
| Left/right roof slope | 12/12 |