10198
10198
10198
10198

10198


Sets of plans
Regular price$945.00
/

This site is protected by hCaptcha and the hCaptcha Privacy Policy and Terms of Service apply.

Description

NULL

Additional info

Measurements: Imperial

House style Classic Construction price 
Approximate amount equivalent to what it would cost to have a general contractor (Montreal's South Shore region) build a similar home, excluding the lot and the infrastructure.
243623 $
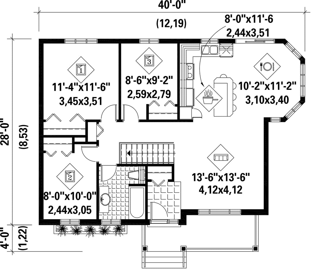
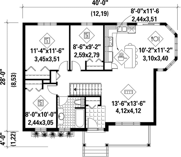
Front 40 ft Total living surface 1007 ft²
Depth 28 ftBathrooms 1
Height 21 ft 5 inBedrooms 3
Master bedroom N / A
First floor area 1007 ft² Exterior walls Aluminum + Brick
Kitchen Breakfast bar + L-shaped layout + Dining room + Island
Garages 0
First floor wall 8 ft
Front/back roof slope 6/12
House style Classic
Construction price 
Approximate amount equivalent to what it would cost to have a general contractor (Montreal's South Shore region) build a similar home, excluding the lot and the infrastructure.
243623 $
Front 40 ft
Total living surface 1007 ft²
Depth 28 ft
Bathrooms 1
Height 21 ft 5 in
Bedrooms 3
Master bedroom N / A
First floor area 1007 ft²
Exterior walls Aluminum + Brick
Kitchen Breakfast bar + L-shaped layout + Dining room + Island
Garages 0
First floor wall 8 ft
Front/back roof slope 6/12

These house plans might also interest you


Recently viewed