Description
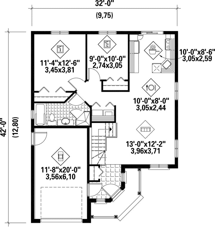
This bungalow features lovely gables, a brick facade and a large front porch. The house is 32 feet wide by 42 feet deep and provides 910 square feet of living space in addition to a 257 square foot one-car garage.
Thanks to numerous windows and a well-spaced interior, the home is bright and inviting. It includes an open living and dining room, a U-shaped kitchen, a large laundry area, a bathroom and two bedrooms.
Thanks to numerous windows and a well-spaced interior, the home is bright and inviting. It includes an open living and dining room, a U-shaped kitchen, a large laundry area, a bathroom and two bedrooms.
Additional info
Measurements: Imperial| House style | Rustic |
Construction price
Approximate amount equivalent to what it would cost to have a general contractor (Montreal's South Shore region) build a similar home, excluding the lot and the infrastructure.
|
242593 $ |
|---|---|---|---|
| Front | 32 ft | Total living surface | 910 ft² |
| Depth | 42 ft | Bathrooms | 1 |
| Height | 26 ft 6 in | Bedrooms | 2 |
| Master bedroom | N / A | Master bedroom - comments | --- |
| First floor area | 910 ft² | Exterior walls | Aluminum + Brick |
| Kitchen | U-shaped + Dining room | ||
| Garage area | 257 ft² | Garages | 1 |
| Garage wall | 8 ft | First floor wall | 8 ft |
| Front/back roof slope | 12/12 | ||
| Left/right roof slope | 12/12 |
| House style | Rustic |
|---|---|
|
Construction price
Approximate amount equivalent to what it would cost to have a general contractor (Montreal's South Shore region) build a similar home, excluding the lot and the infrastructure.
|
242593 $ |
| Front | 32 ft |
| Total living surface | 910 ft² |
| Depth | 42 ft |
| Bathrooms | 1 |
| Height | 26 ft 6 in |
| Bedrooms | 2 |
| Master bedroom | N / A |
| Master bedroom - comments | --- |
| First floor area | 910 ft² |
| Exterior walls | Aluminum + Brick |
| Kitchen | U-shaped + Dining room |
| Garage area | 257 ft² |
| Garages | 1 |
| Garage wall | 8 ft |
| First floor wall | 8 ft |
| Front/back roof slope | 12/12 |
| Left/right roof slope | 12/12 |