Description
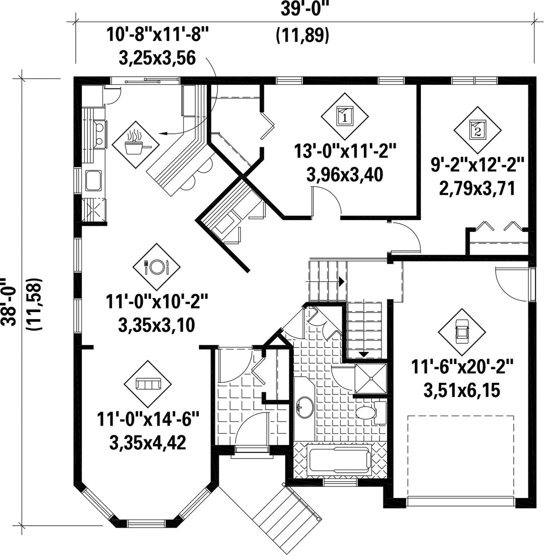
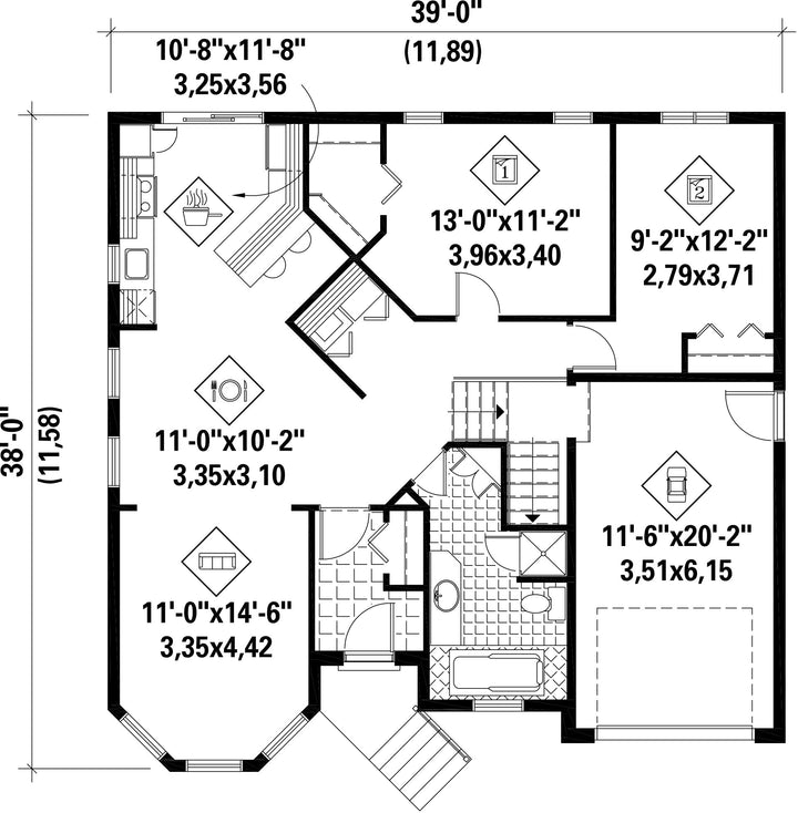
This superb bungalow features a stone facing, decorative moldings, a front turret and a transom window. The house is 39 feet wide by 38 feet deep and provides 1,132 square feet of living space.
The home includes a closed entrance hall, an open dining and living room, a kitchen with a lunch counter, two bedrooms, a bathroom and a 254 square foot one-car garage adjoining the house.
The home includes a closed entrance hall, an open dining and living room, a kitchen with a lunch counter, two bedrooms, a bathroom and a 254 square foot one-car garage adjoining the house.
Additional info
Measurements: Imperial| House style | Victorian |
Construction price
Approximate amount equivalent to what it would cost to have a general contractor (Montreal's South Shore region) build a similar home, excluding the lot and the infrastructure.
|
294335 $ |
|---|---|---|---|
| Front | 39 ft | Total living surface | 1132 ft² |
| Depth | 38 ft | Bathrooms | 1 |
| Height | 25 ft 7 in | Bedrooms | 2 |
| Master bedroom | Wardrobe | Master bedroom - comments | --- |
| First floor area | 1132 ft² | Exterior walls | Aluminum + Stone |
| Kitchen | Meal counter + Dining room | ||
| Garage area | 254 ft² | Garages | 1 |
| Garage wall | 8 ft | First floor wall | 8 ft |
| Front/back roof slope | 8/12 | ||
| Left/right roof slope | 16/12 |
| House style | Victorian |
|---|---|
|
Construction price
Approximate amount equivalent to what it would cost to have a general contractor (Montreal's South Shore region) build a similar home, excluding the lot and the infrastructure.
|
294335 $ |
| Front | 39 ft |
| Total living surface | 1132 ft² |
| Depth | 38 ft |
| Bathrooms | 1 |
| Height | 25 ft 7 in |
| Bedrooms | 2 |
| Master bedroom | Wardrobe |
| Master bedroom - comments | --- |
| First floor area | 1132 ft² |
| Exterior walls | Aluminum + Stone |
| Kitchen | Meal counter + Dining room |
| Garage area | 254 ft² |
| Garages | 1 |
| Garage wall | 8 ft |
| First floor wall | 8 ft |
| Front/back roof slope | 8/12 |
| Left/right roof slope | 16/12 |