Description
NULL
Additional info
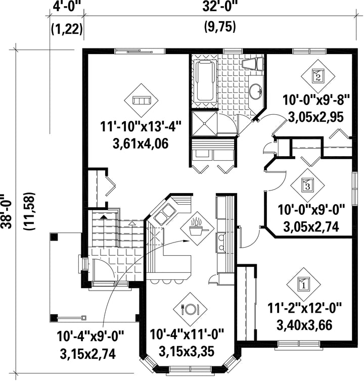
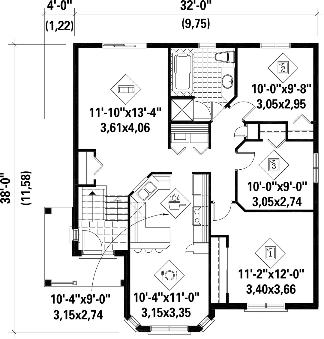
Measurements: Imperial| House style | Rustic |
Construction price
Approximate amount equivalent to what it would cost to have a general contractor (Montreal's South Shore region) build a similar home, excluding the lot and the infrastructure.
|
259120 $ |
|---|---|---|---|
| Front | 32 ft | Total living surface | 1109 ft² |
| Depth | 38 ft | Bathrooms | 1 |
| Height | 22 ft 3 in | Bedrooms | 3 |
| Master bedroom | N / A | ||
| First floor area | 1109 ft² | Exterior walls | Aluminum |
| Kitchen | Meal counter + Dining room | ||
| Garages | 0 | ||
| First floor wall | 8 ft | ||
| Front/back roof slope | 6/12 | ||
| Left/right roof slope | 12/12 |
| House style | Rustic |
|---|---|
|
Construction price
Approximate amount equivalent to what it would cost to have a general contractor (Montreal's South Shore region) build a similar home, excluding the lot and the infrastructure.
|
259120 $ |
| Front | 32 ft |
| Total living surface | 1109 ft² |
| Depth | 38 ft |
| Bathrooms | 1 |
| Height | 22 ft 3 in |
| Bedrooms | 3 |
| Master bedroom | N / A |
| First floor area | 1109 ft² |
| Exterior walls | Aluminum |
| Kitchen | Meal counter + Dining room |
| Garages | 0 |
| First floor wall | 8 ft |
| Front/back roof slope | 6/12 |
| Left/right roof slope | 12/12 |